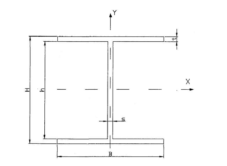
Двутавр 40ш2