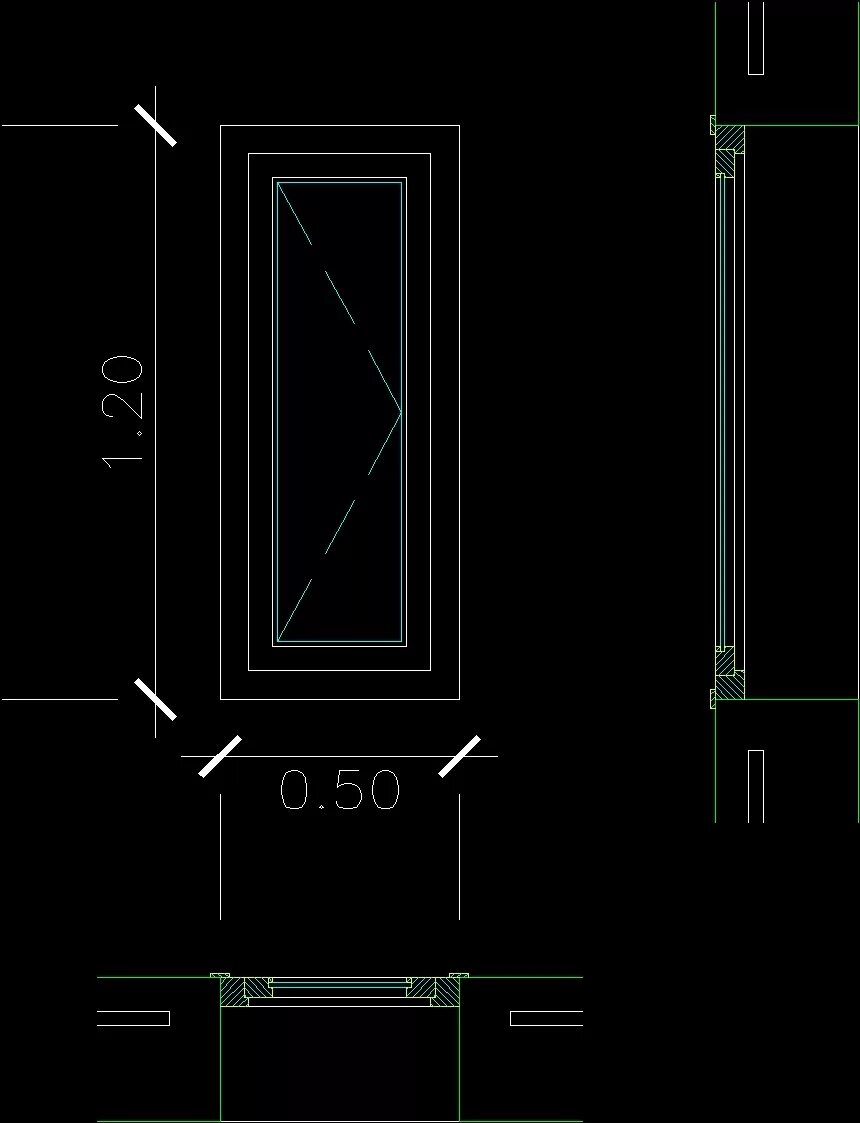
Dwg windows 10