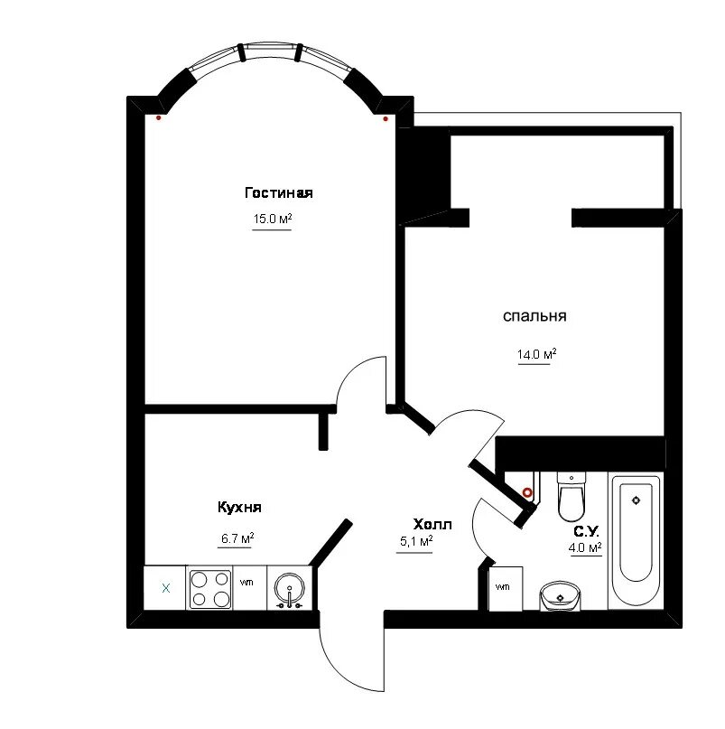
Dx 155.1