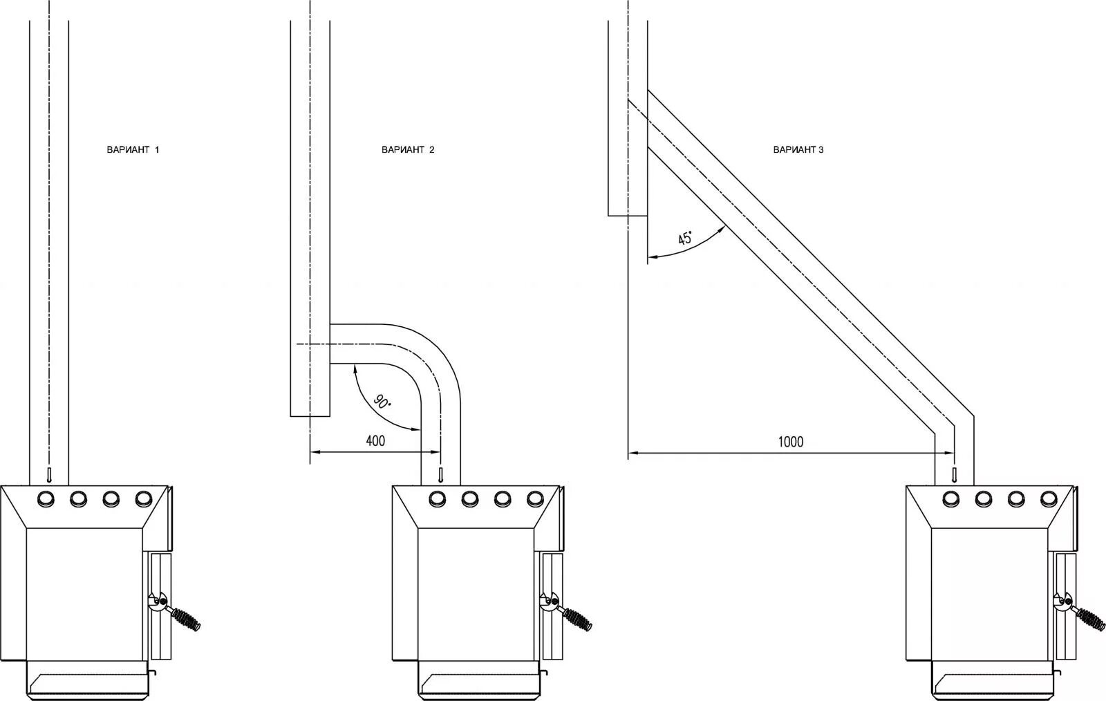
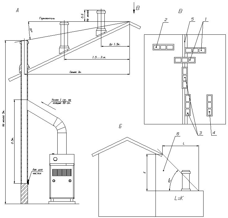
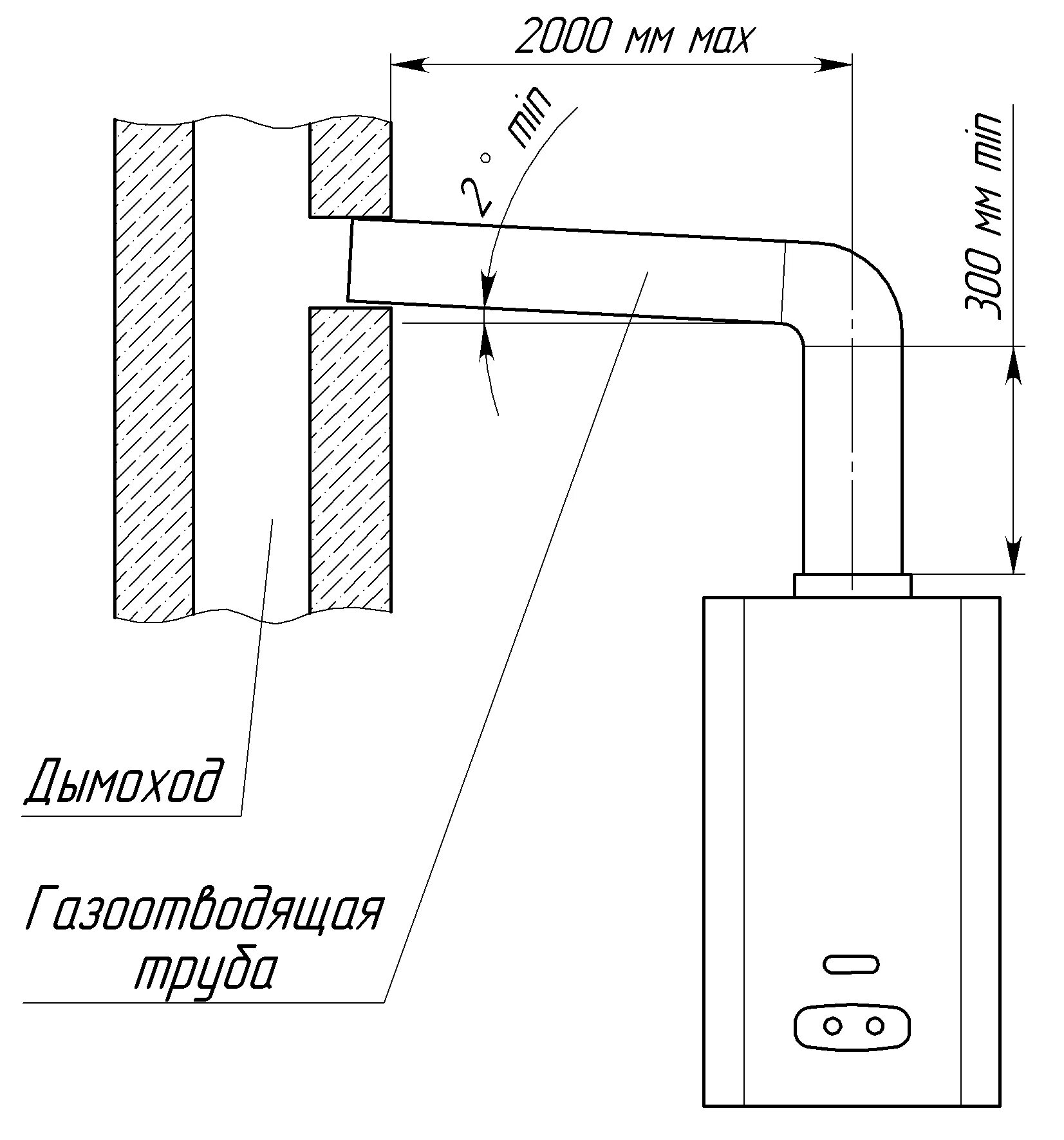
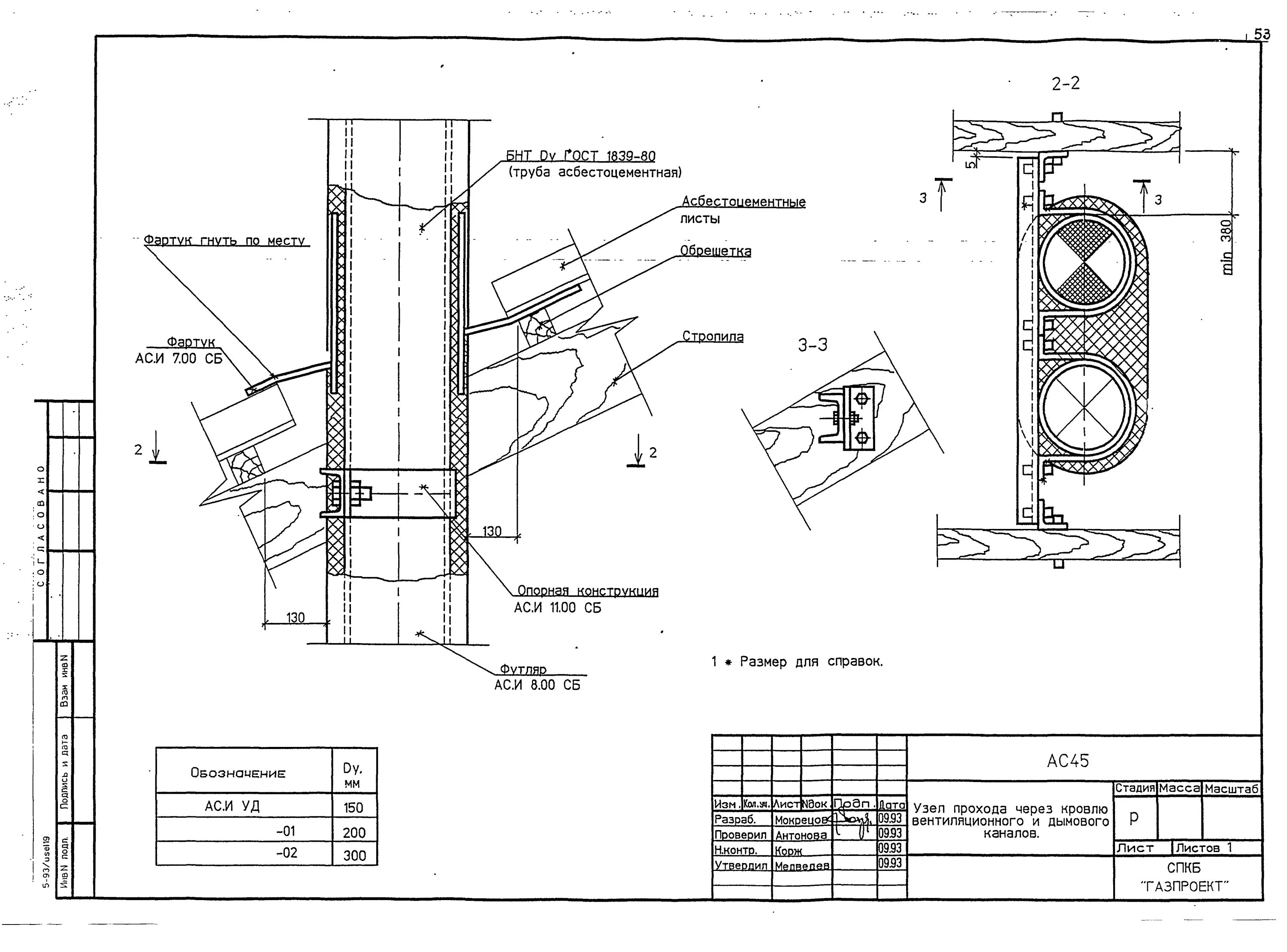
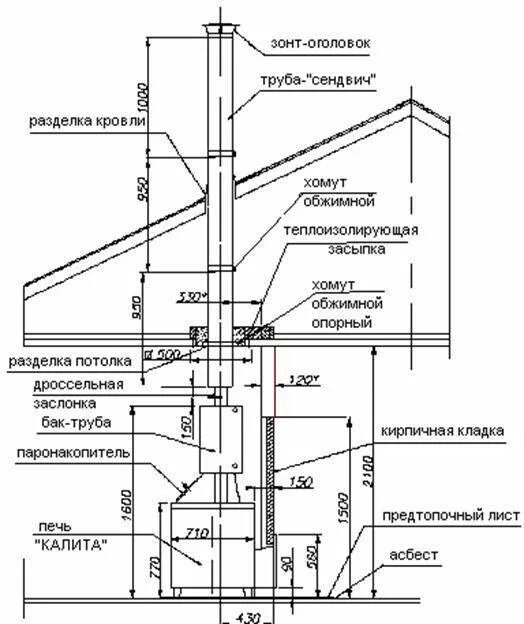
Дымоход чертеж