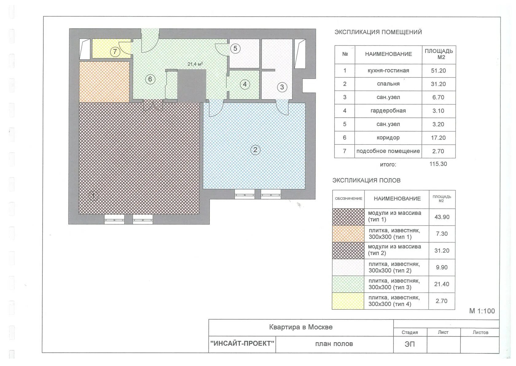
Экспликация пример