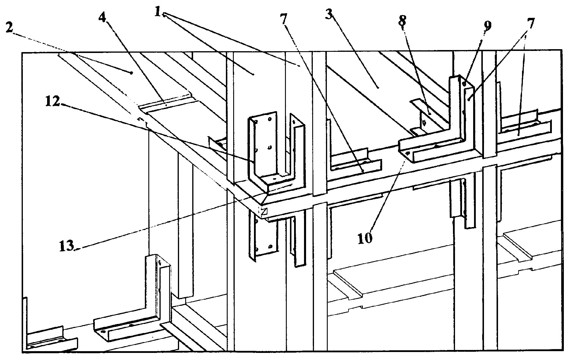
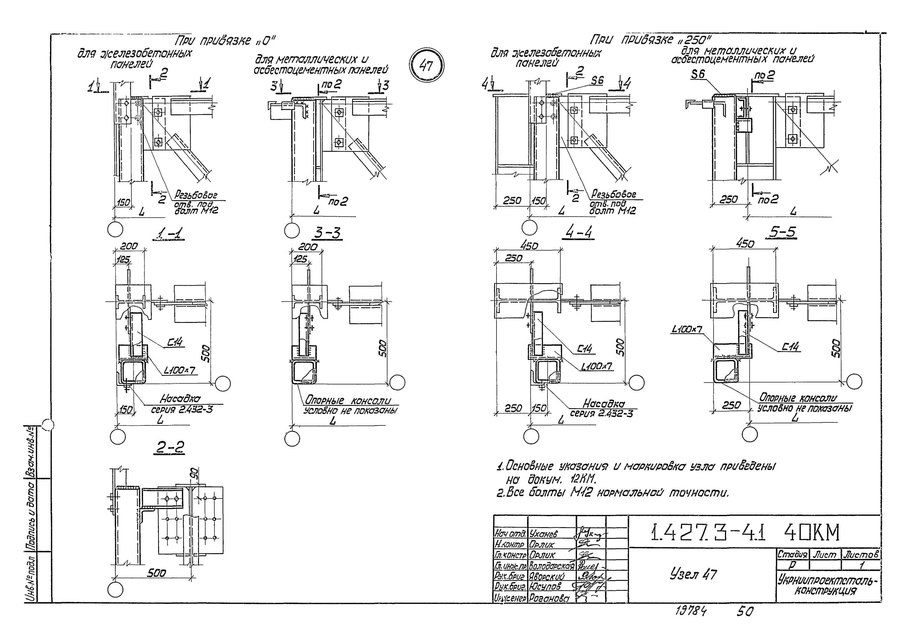
Элемент фахверка