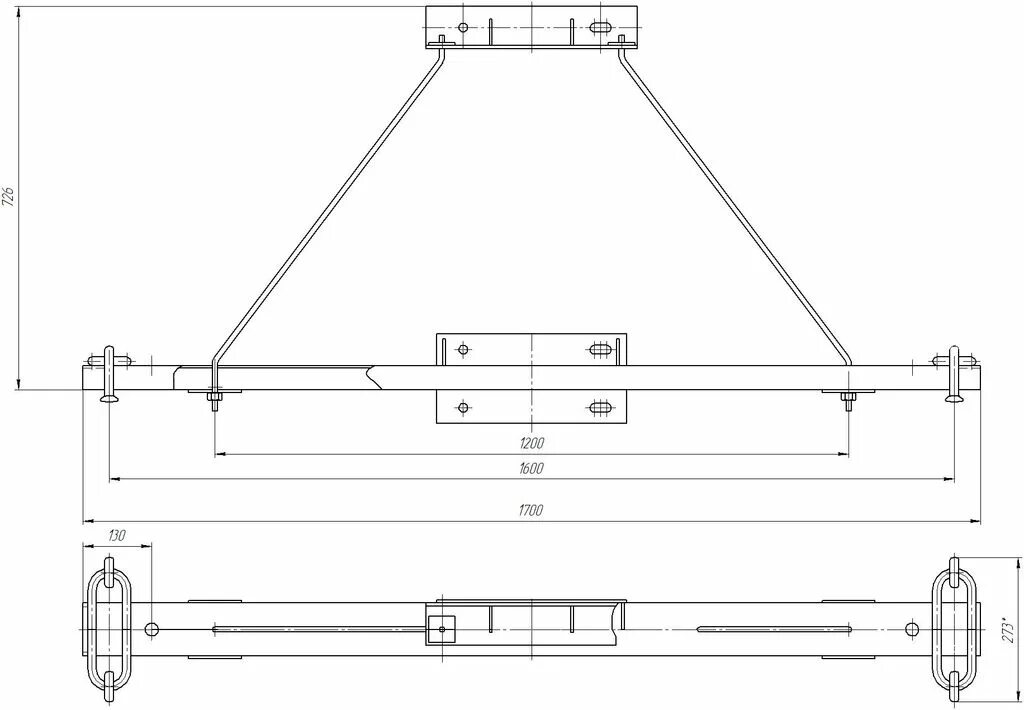
Элементы траверсы