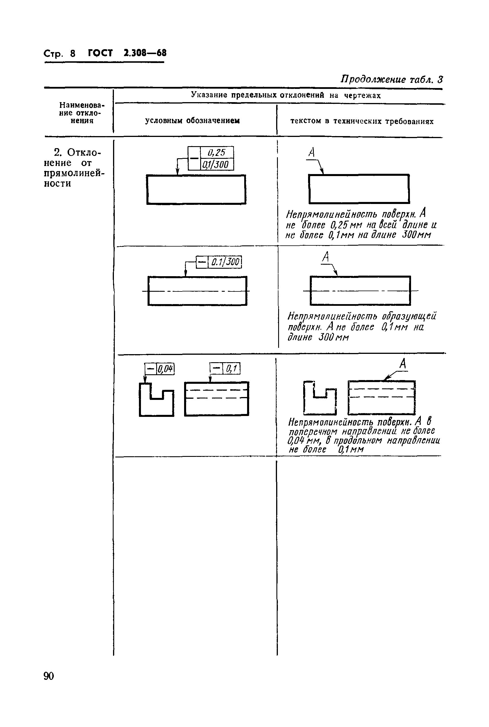
Ескд допуски формы и расположения поверхностей