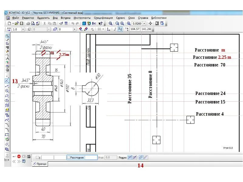
Файл чертежа