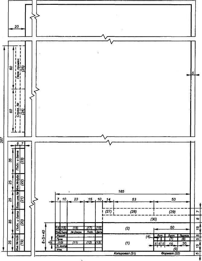
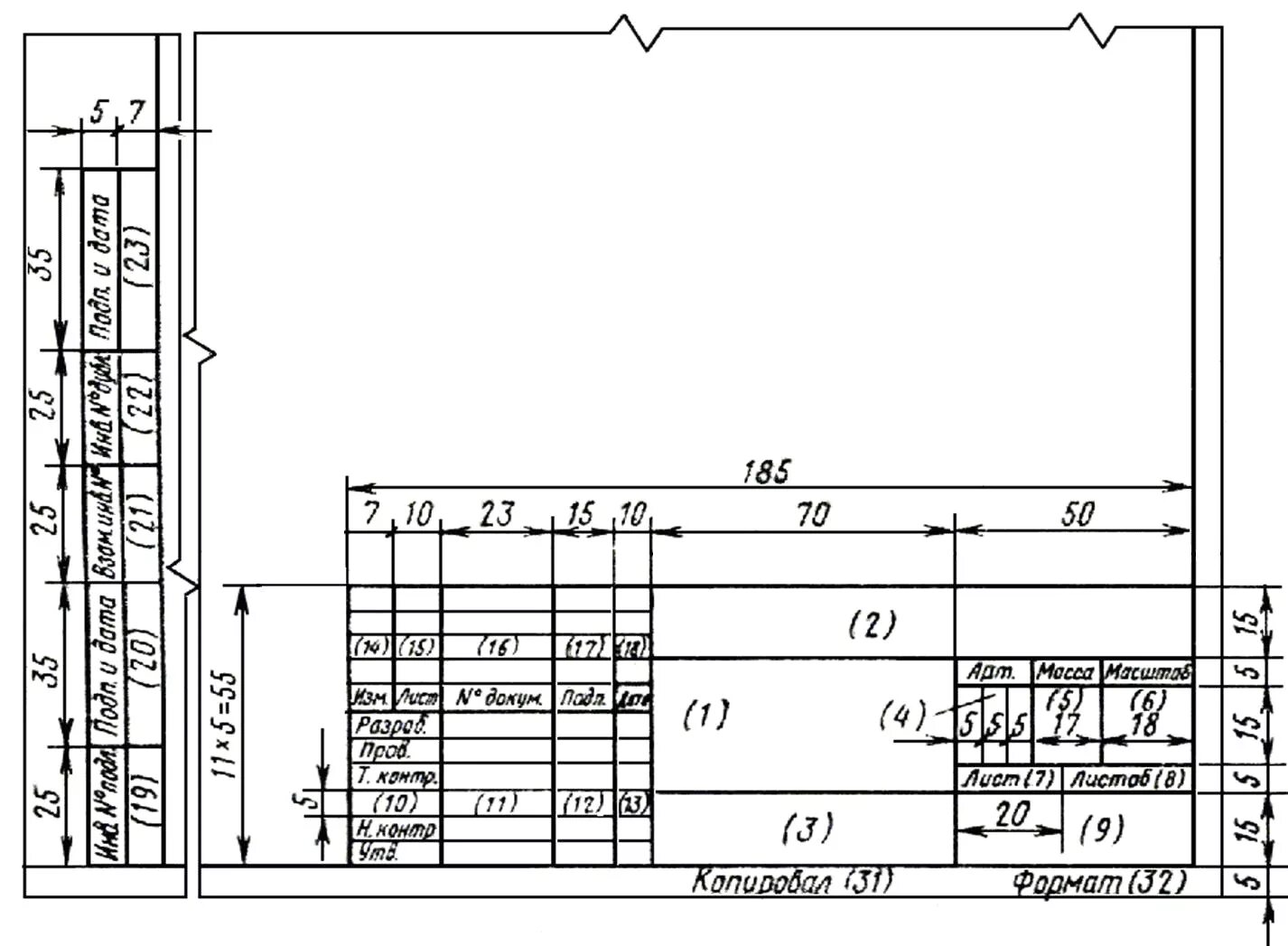
Формат а3 размеры рамки