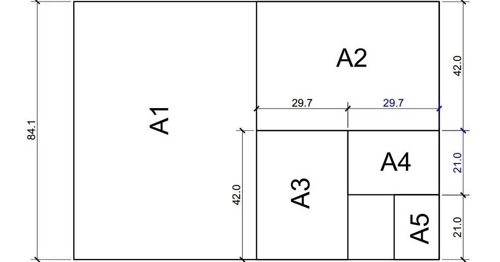
Формат ватмана размеры