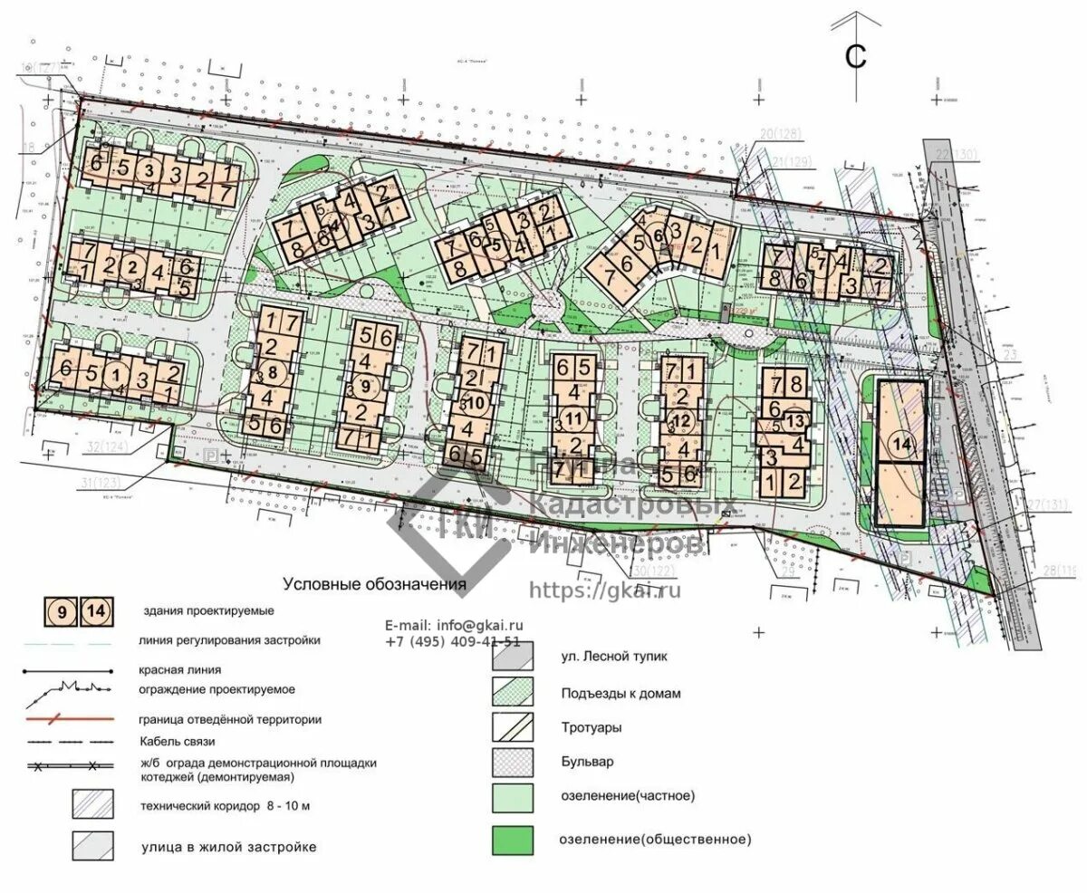
Формирование земельного участка под мкд