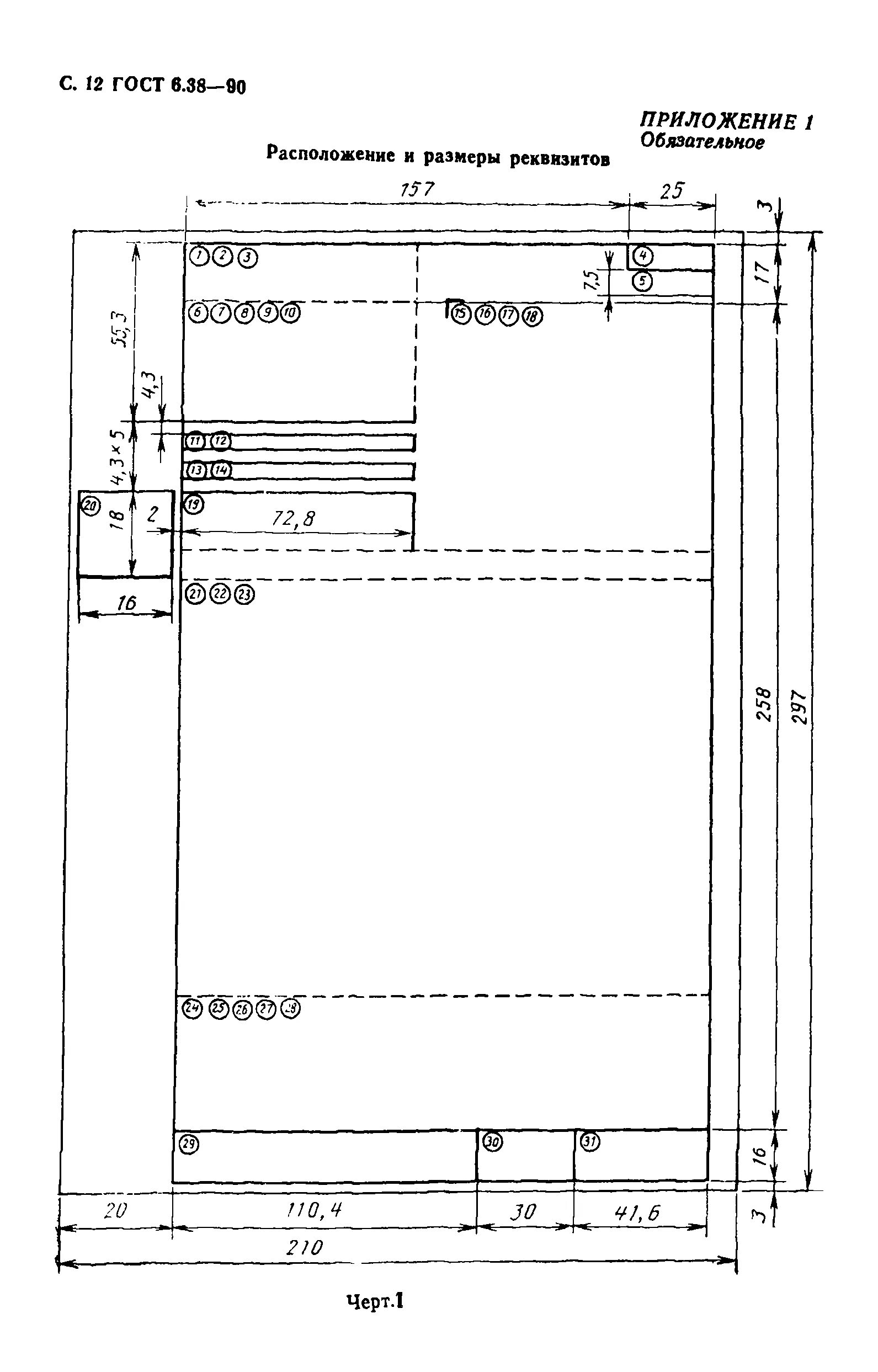
Формуляр ескд