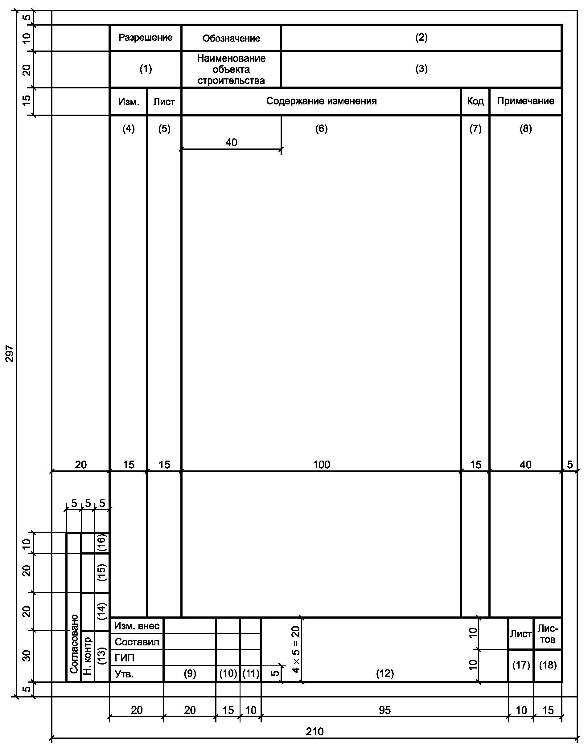
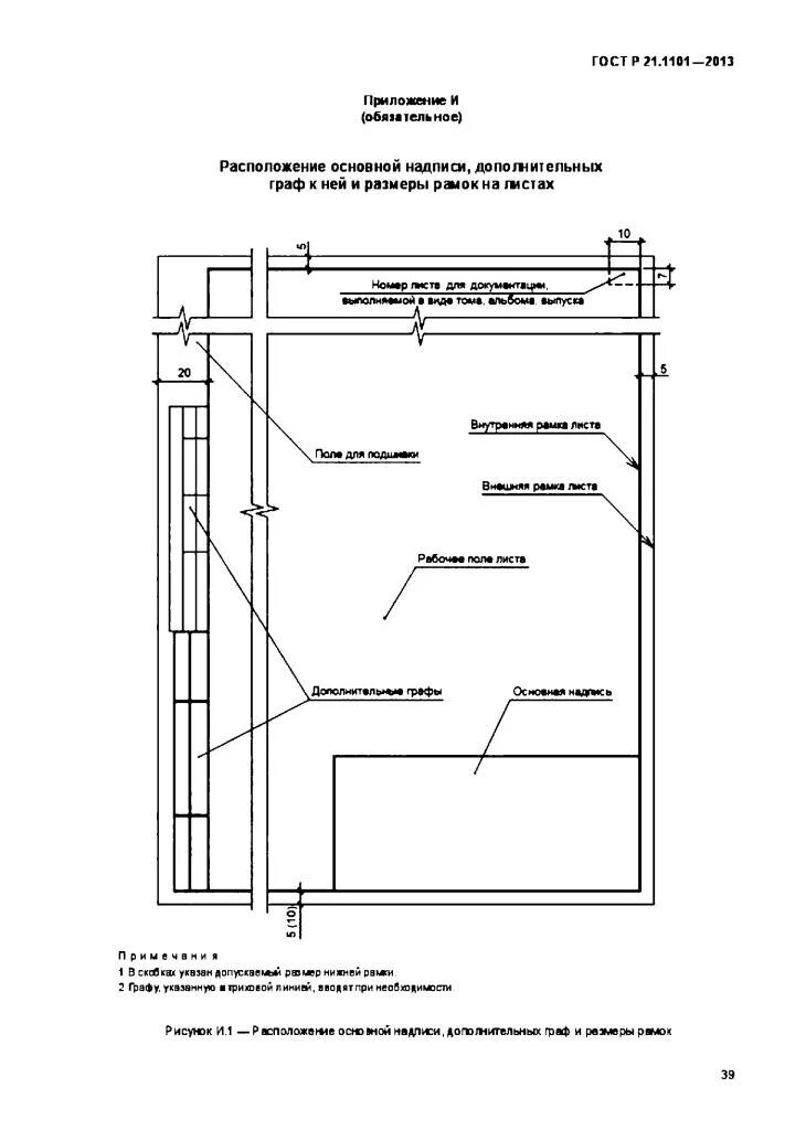
Формы рабочей документации