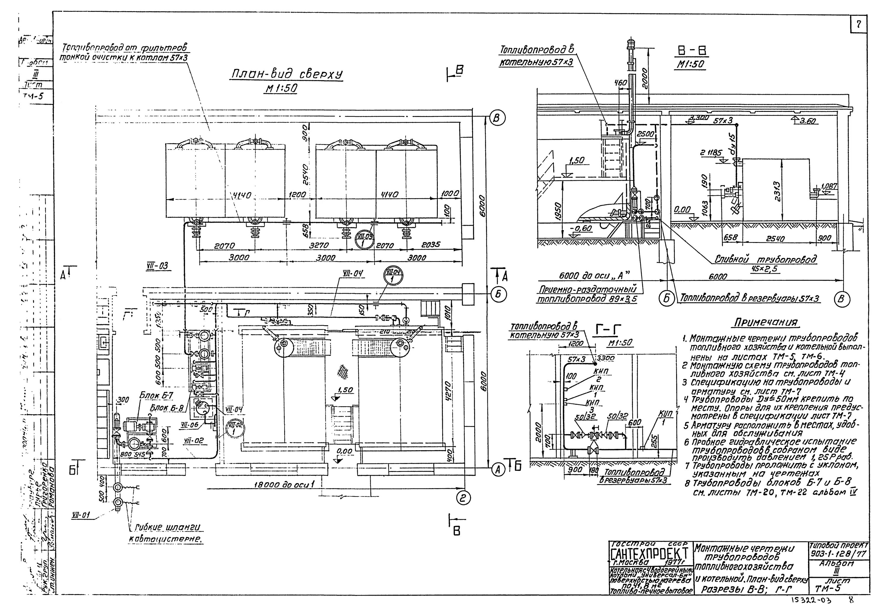
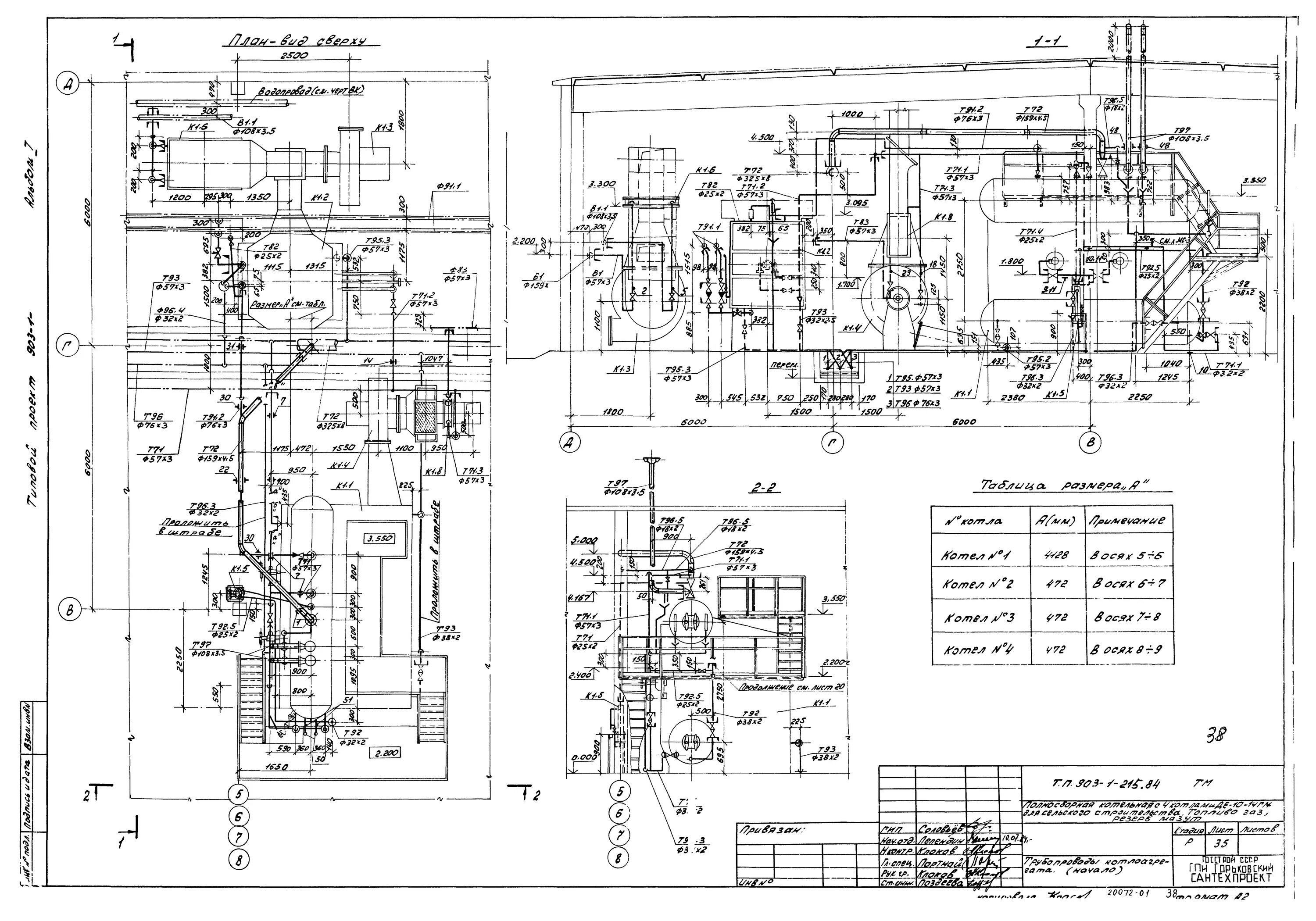
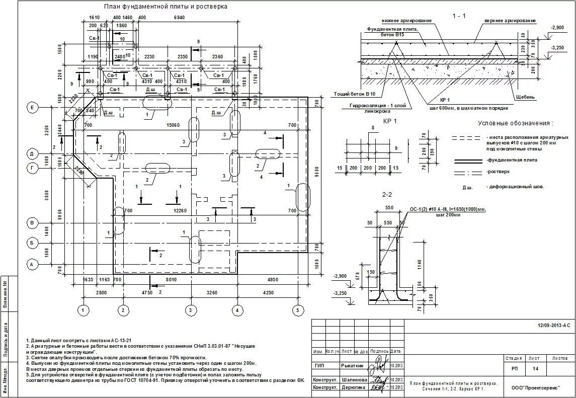
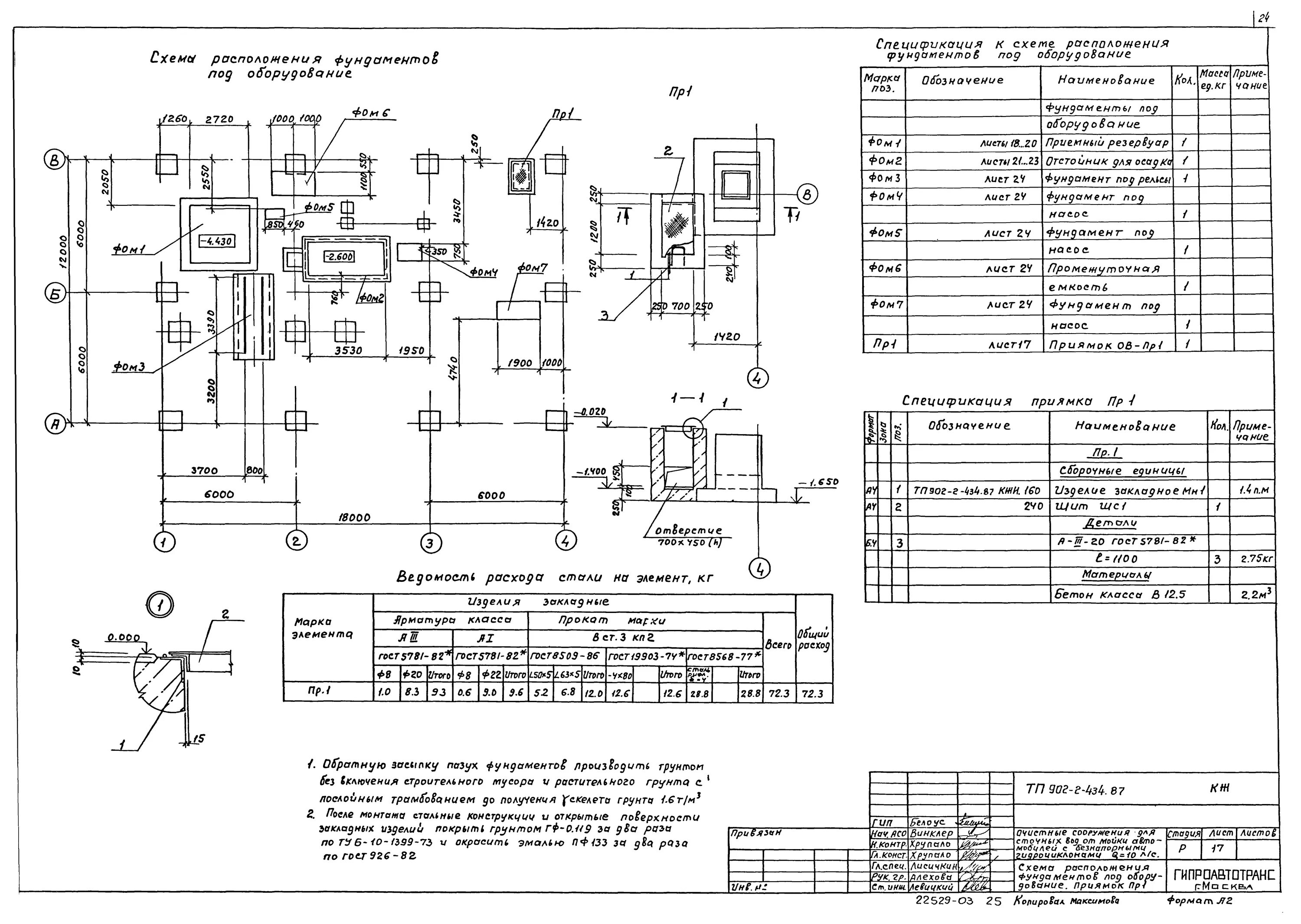
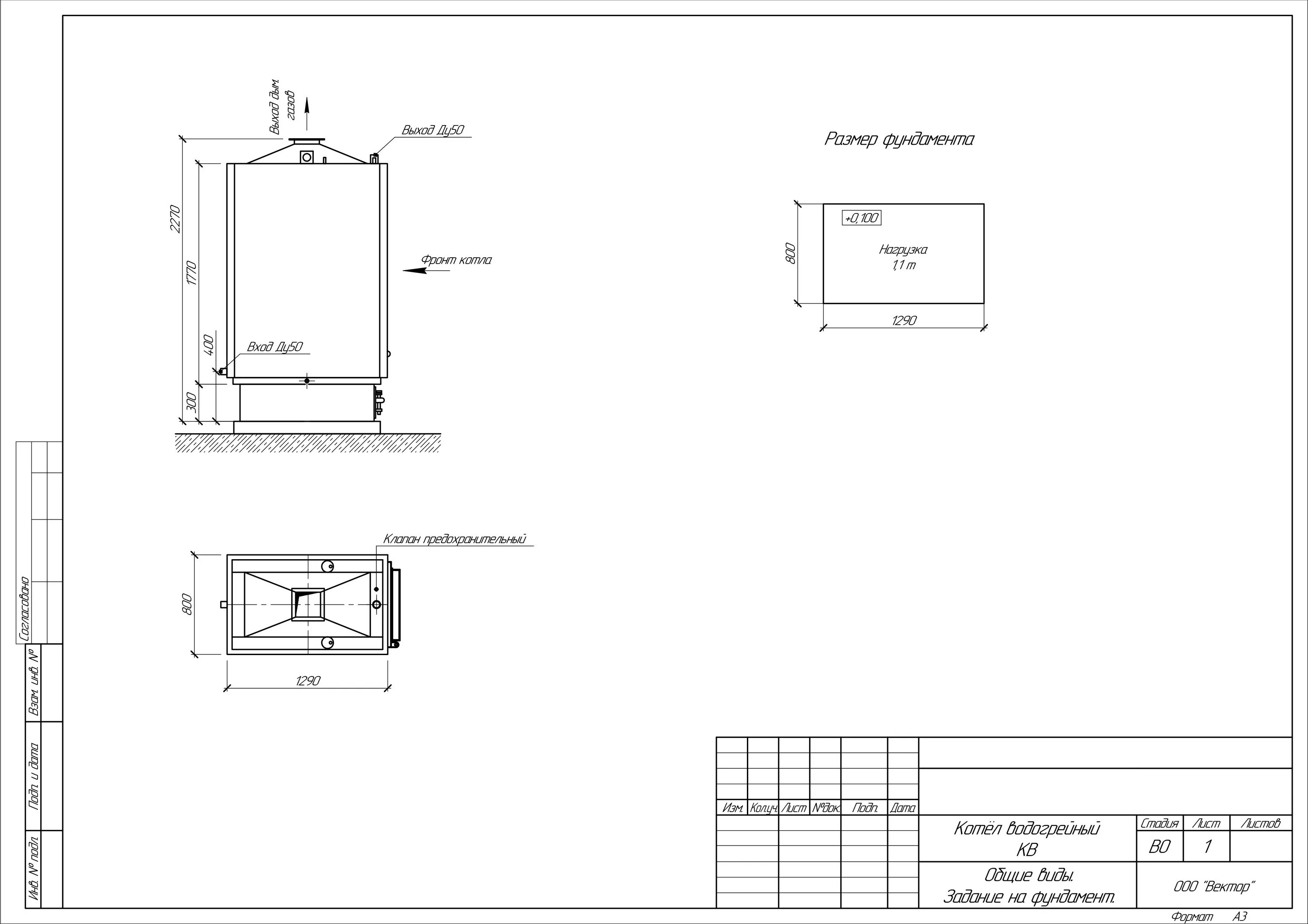
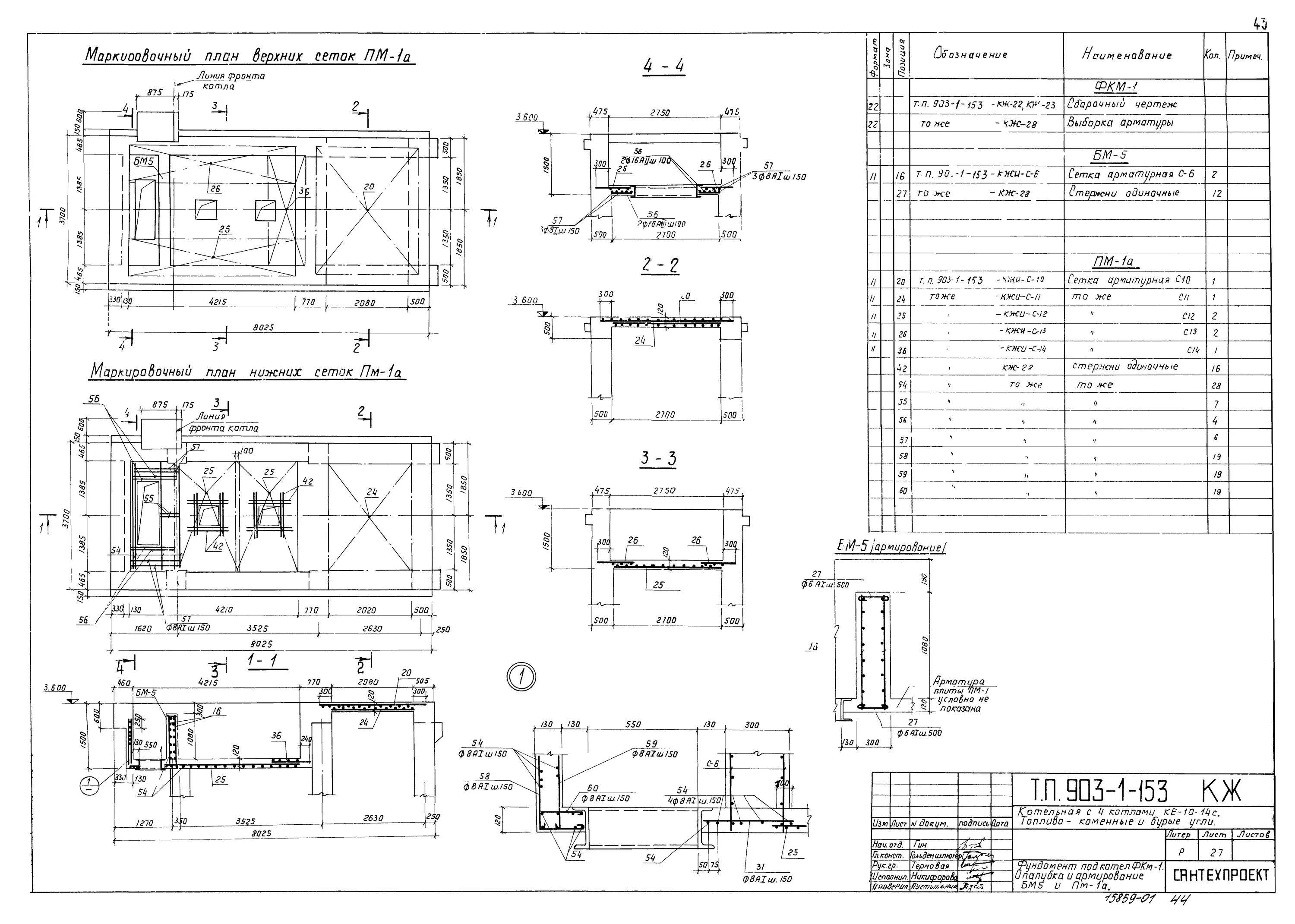
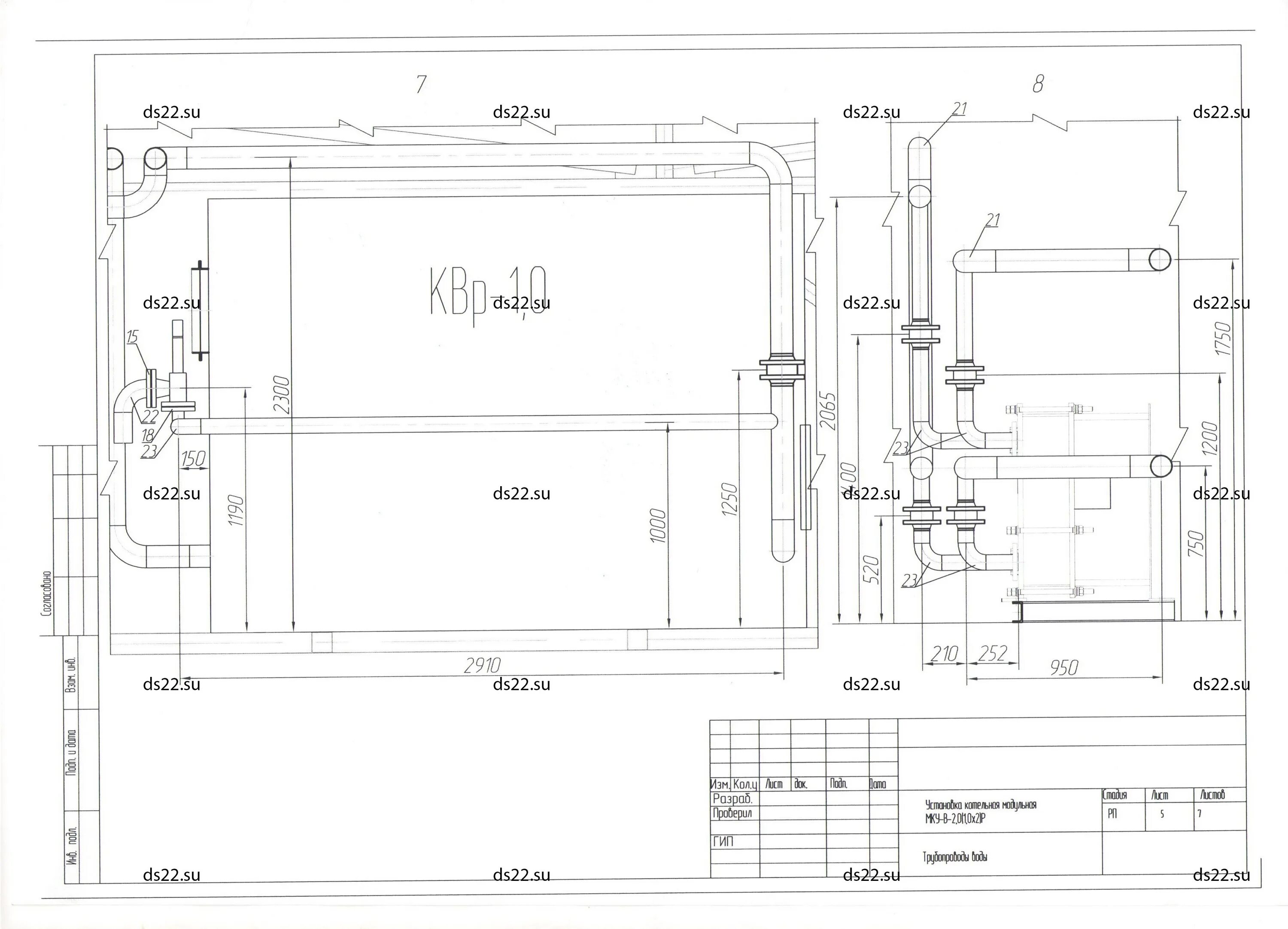
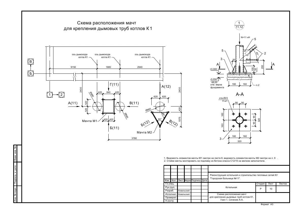
Фундамент под котельную