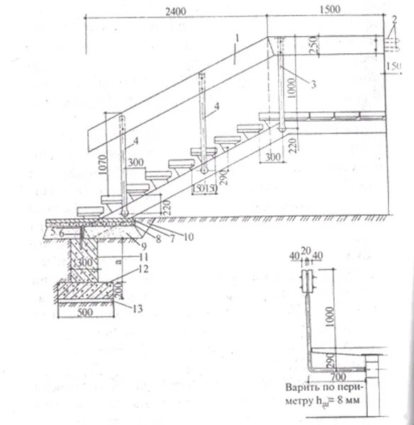
Фундамент под лестницу