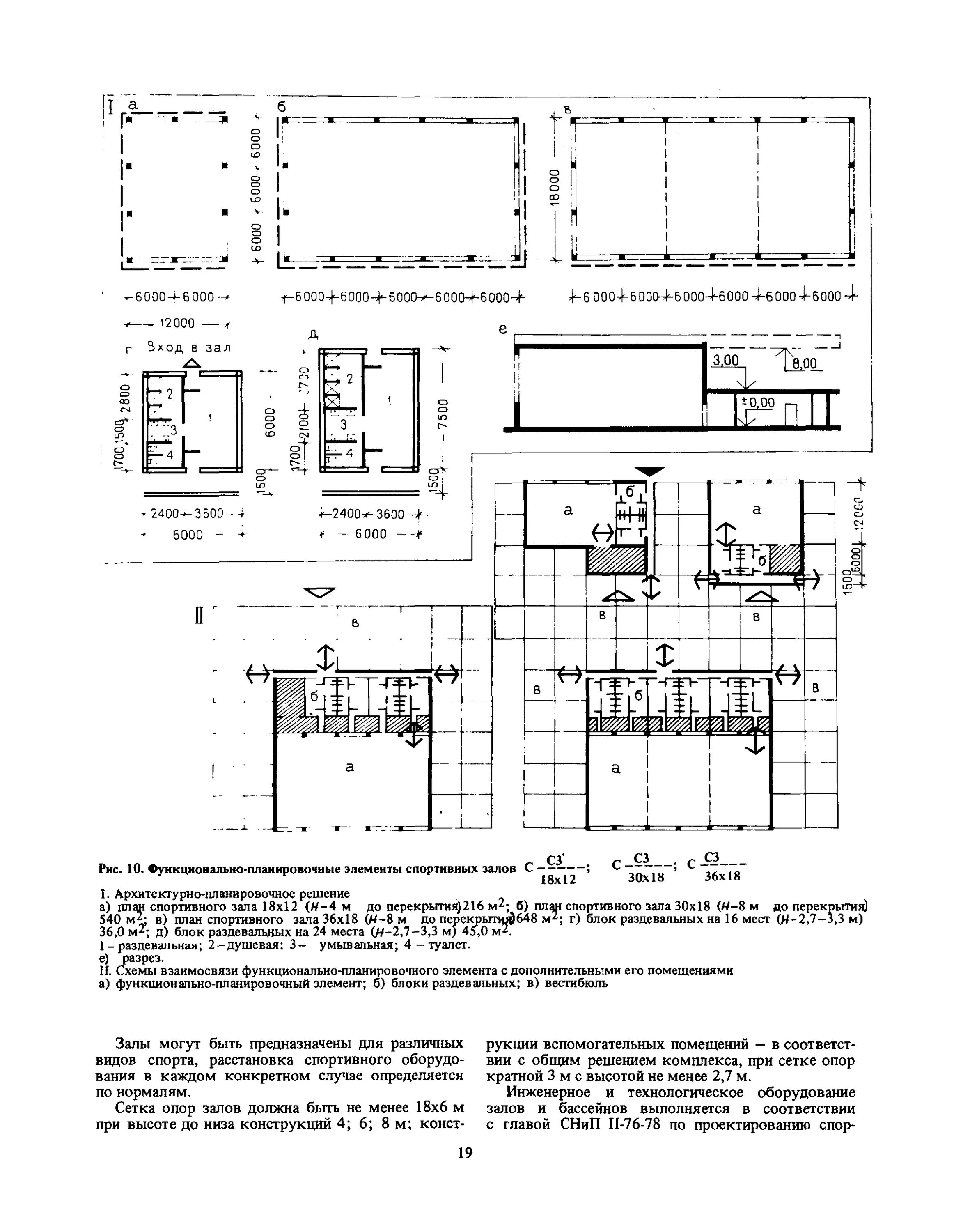
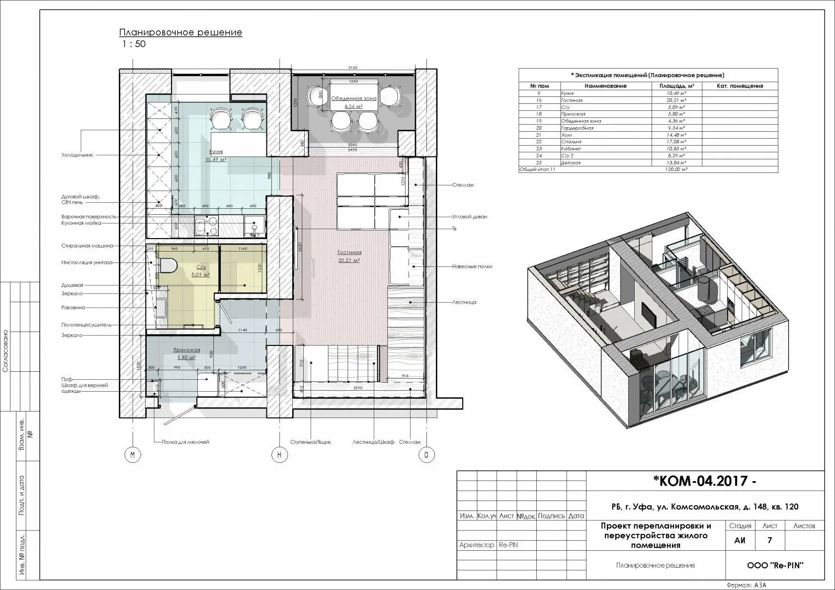
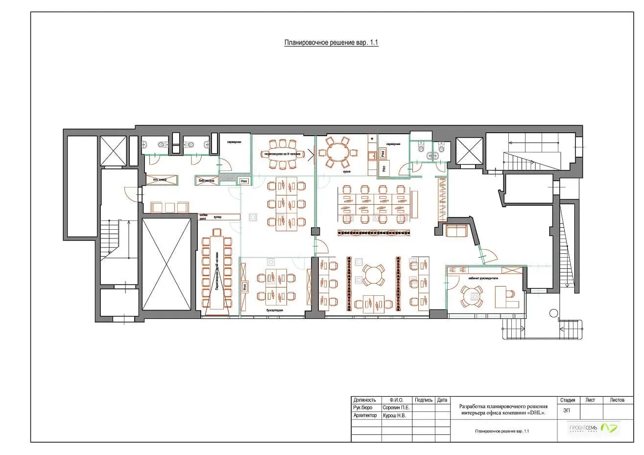
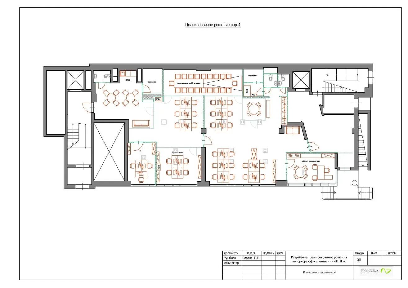
Функционально планировочное решение здания