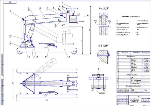
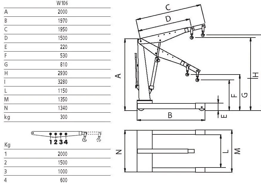
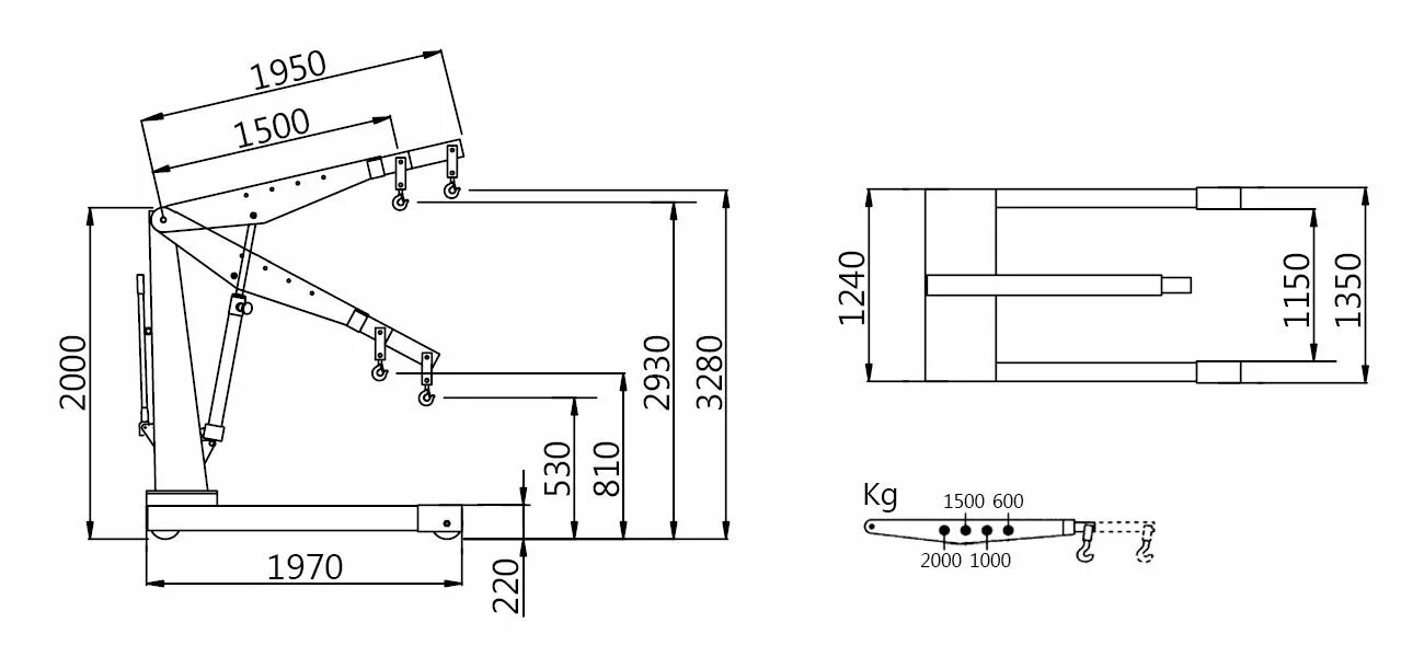
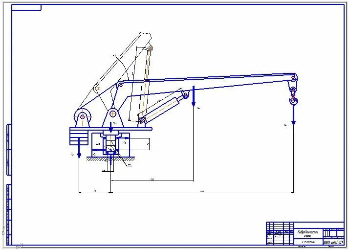
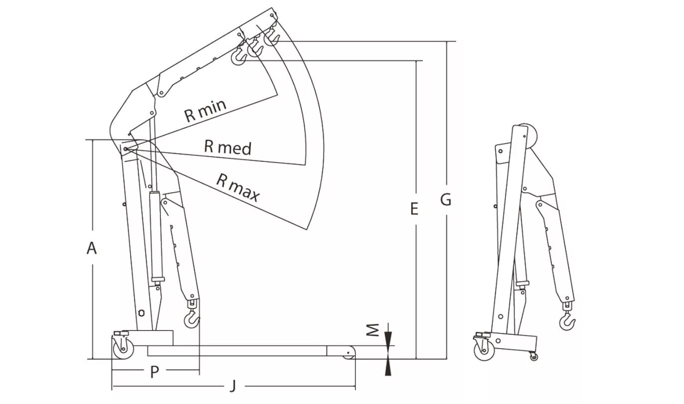
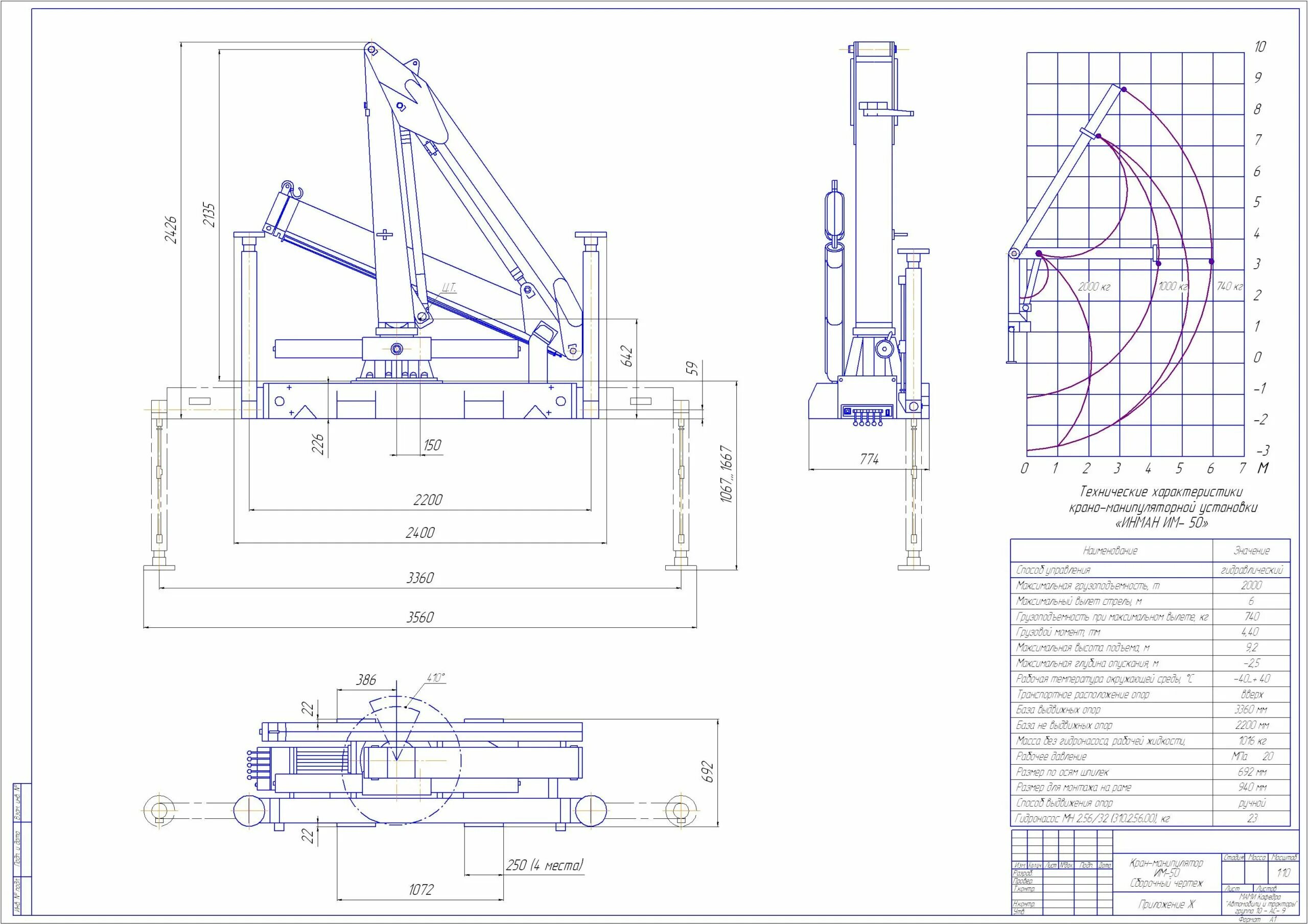
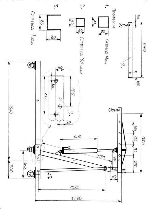
Гидравлический кран чертежи