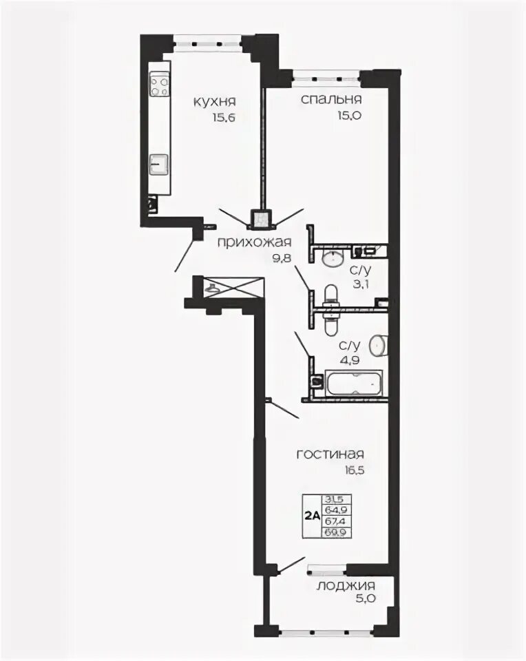
Горького 295