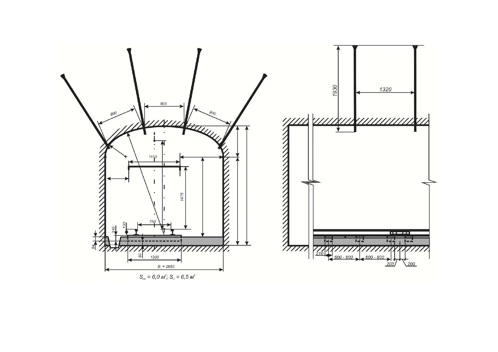
Горная выработка 5