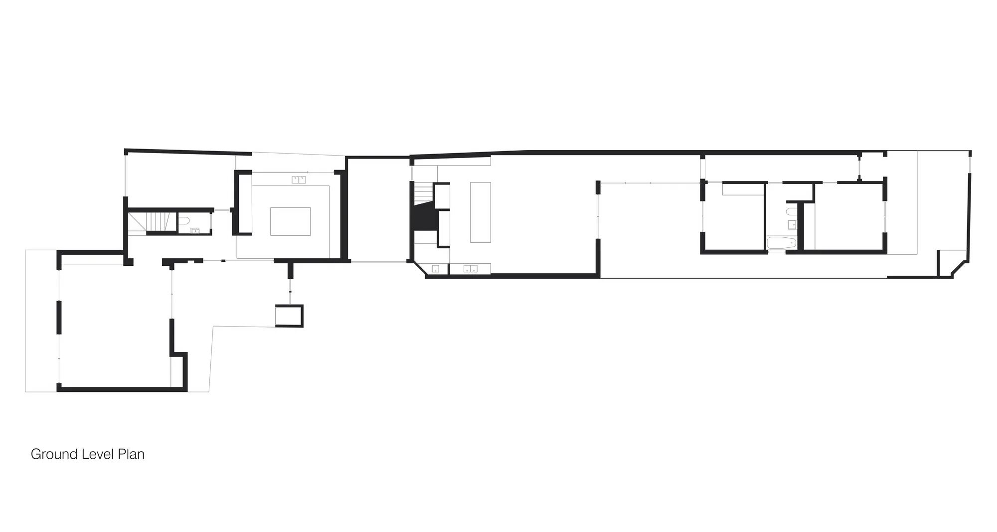
Ground level