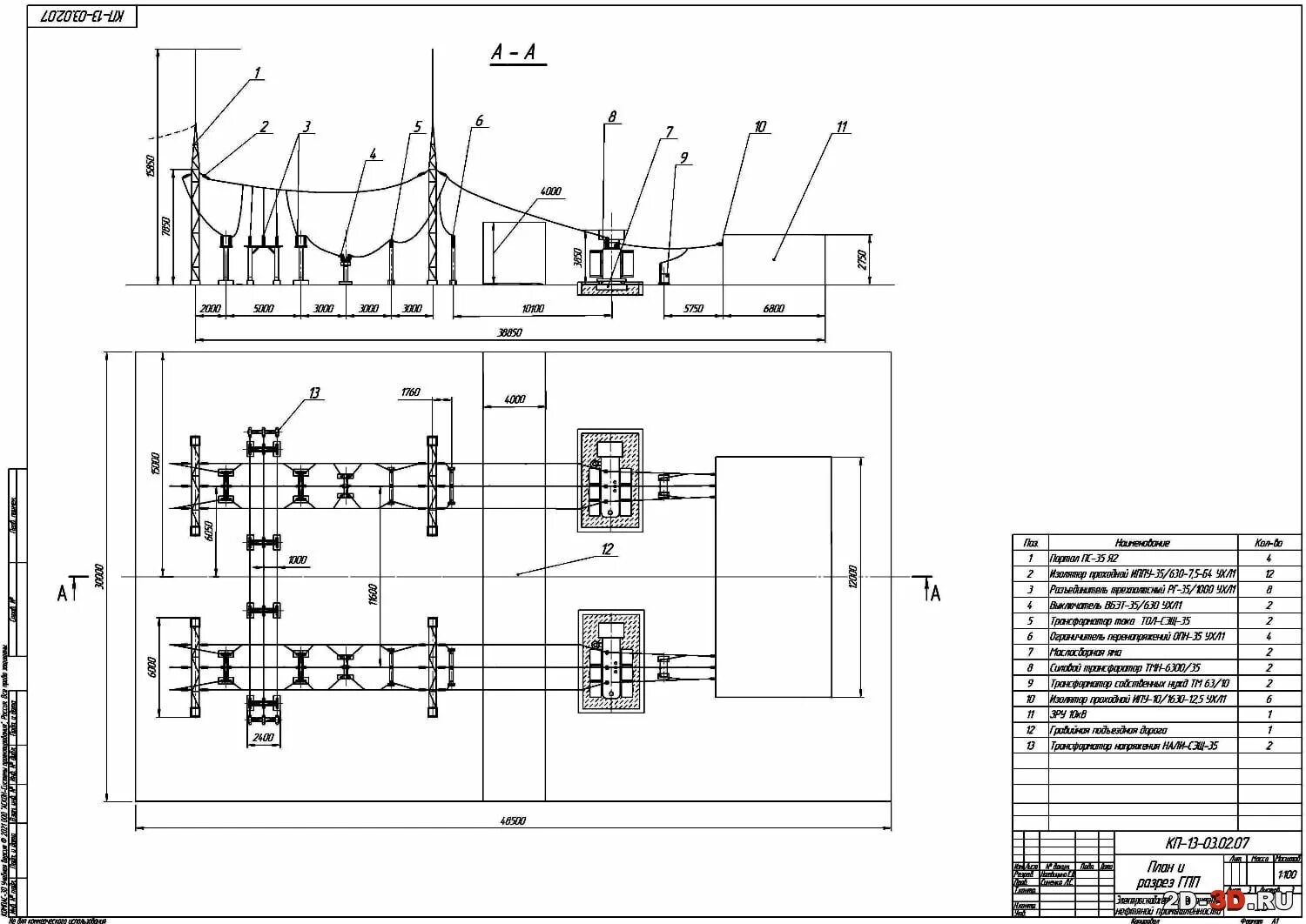
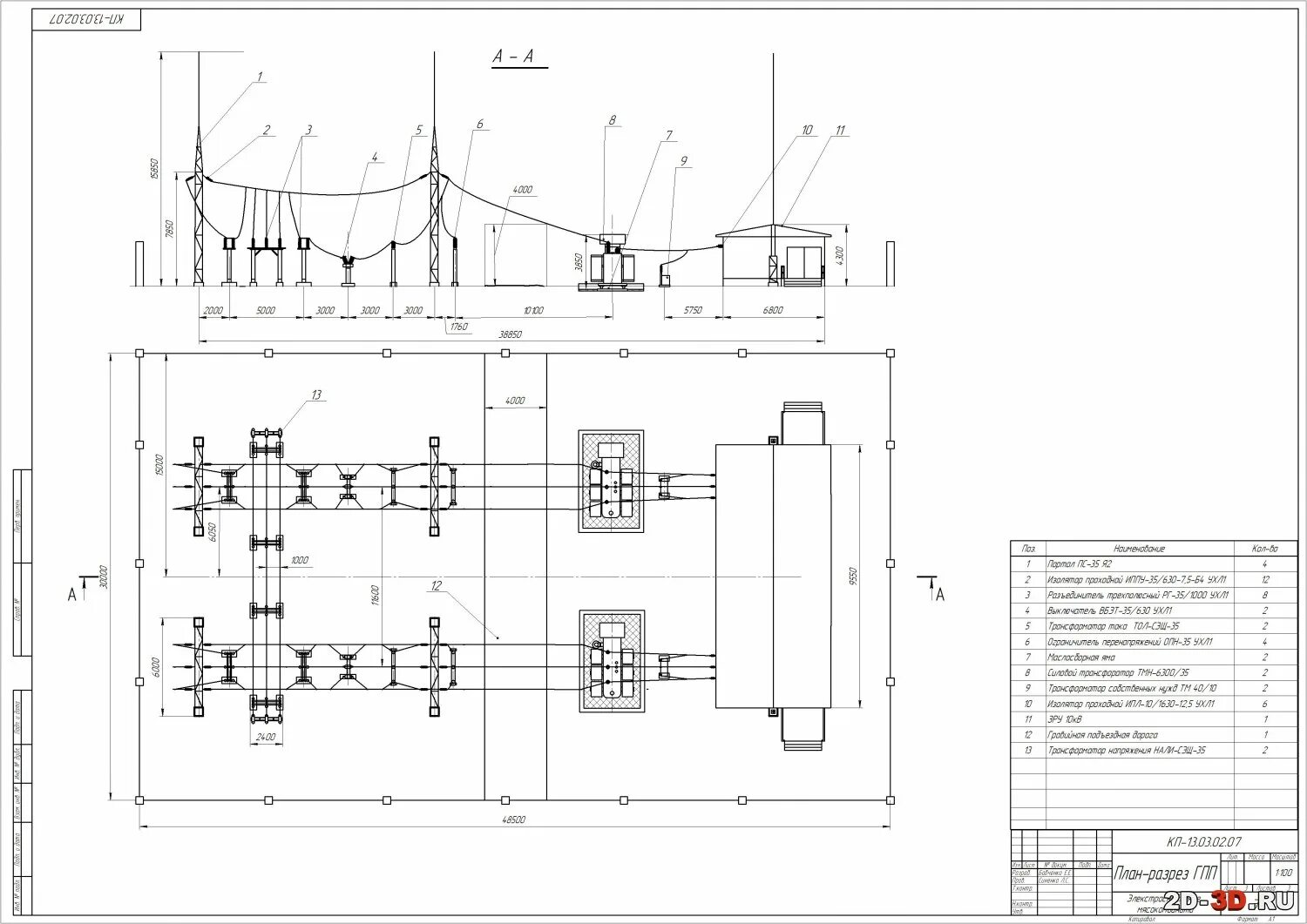
Грп гпп