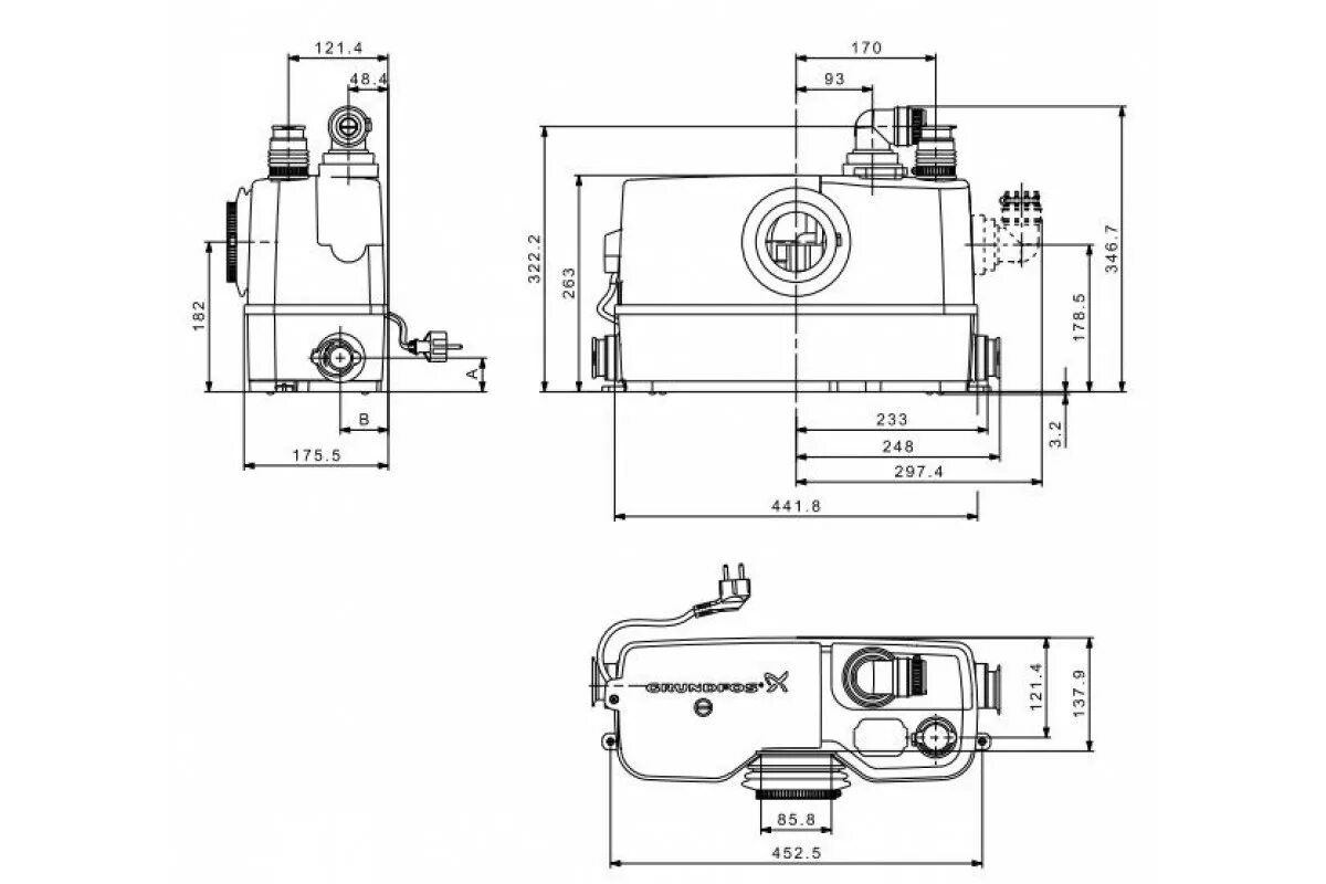
Grundfos sololift wc 3