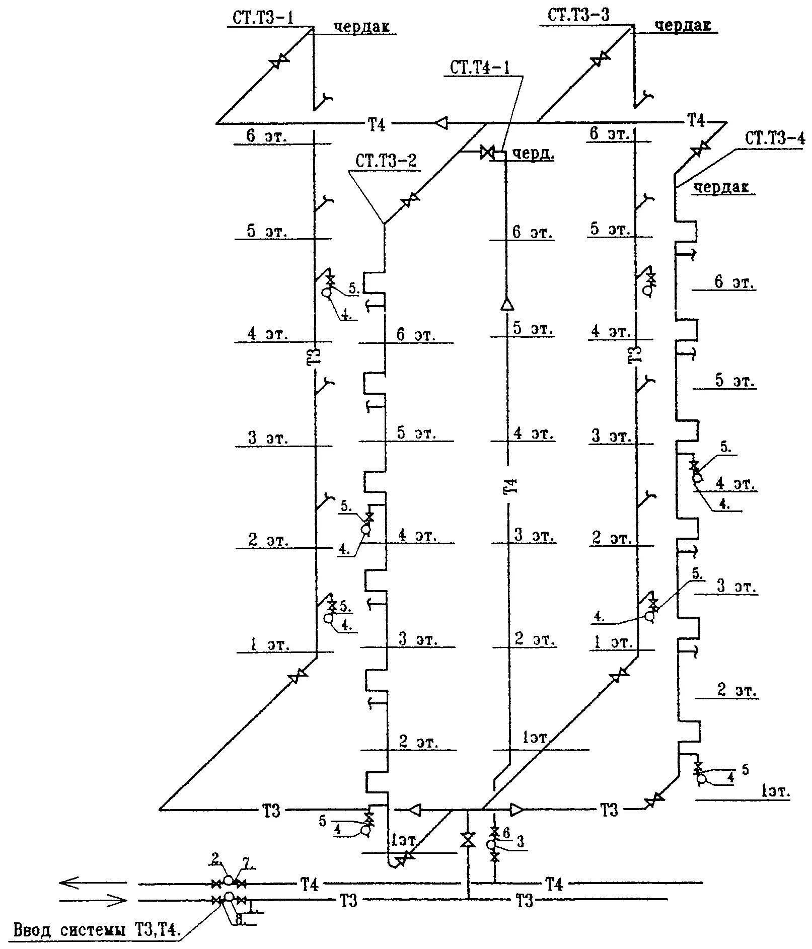
Гвс в мкд