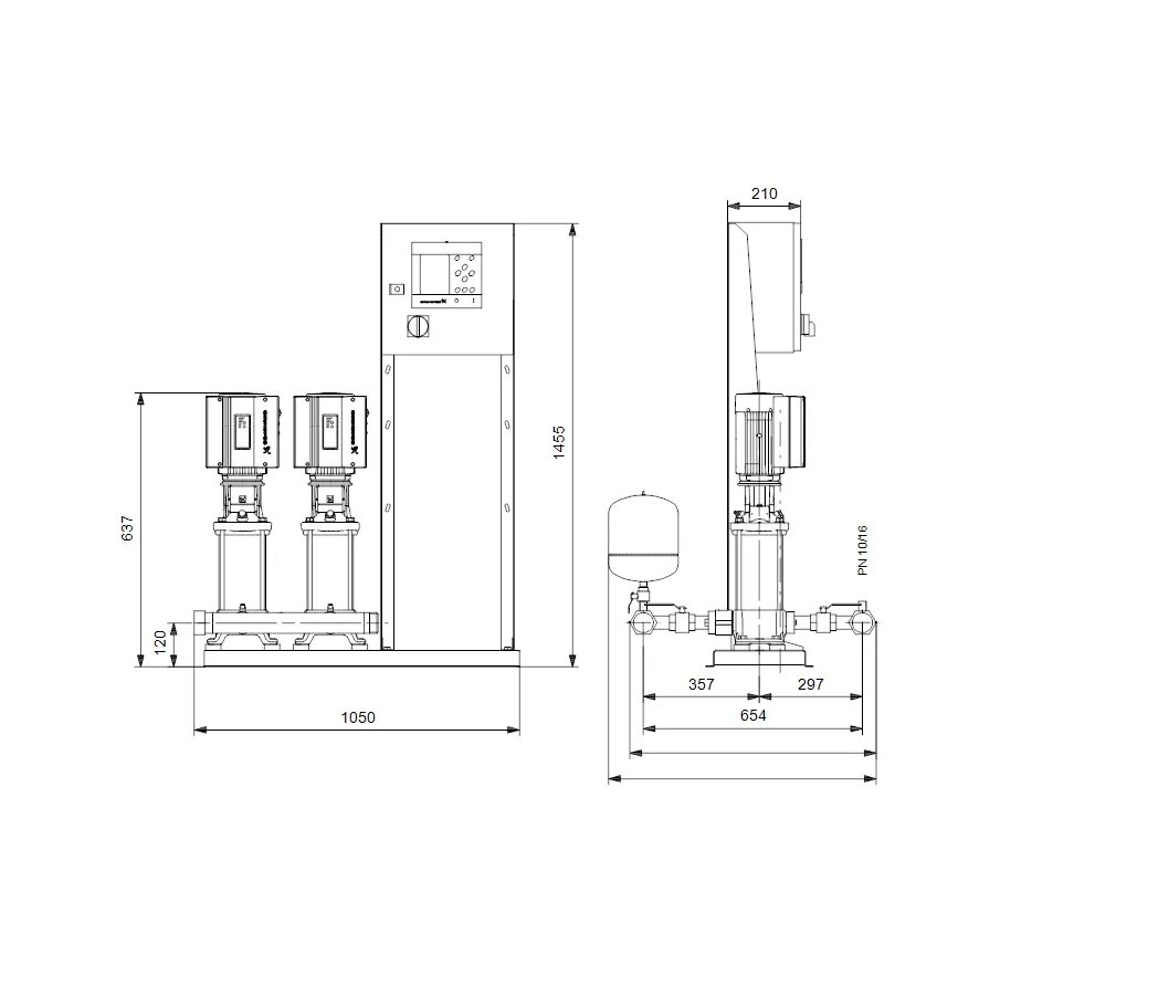
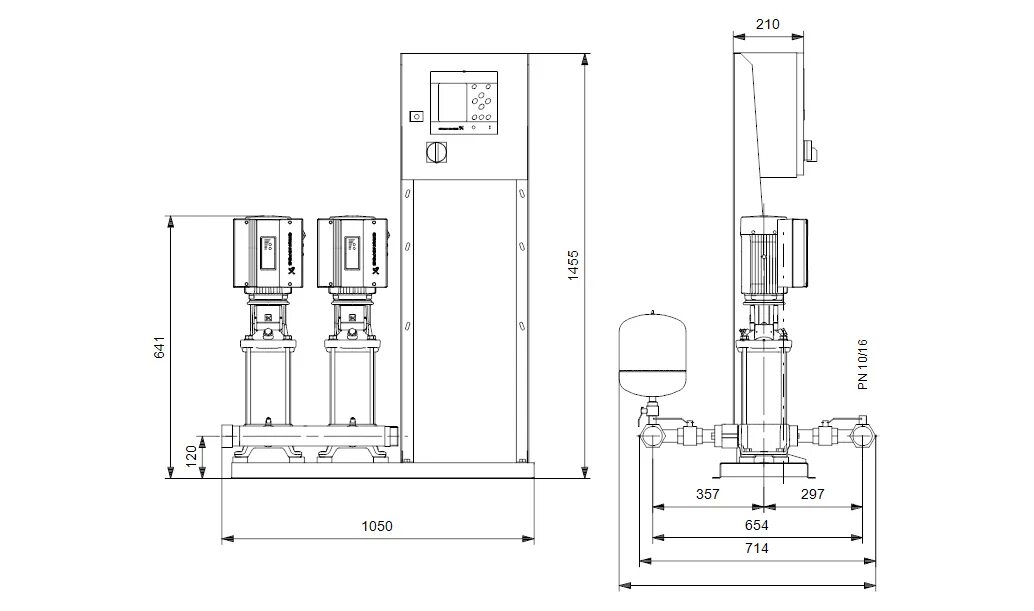
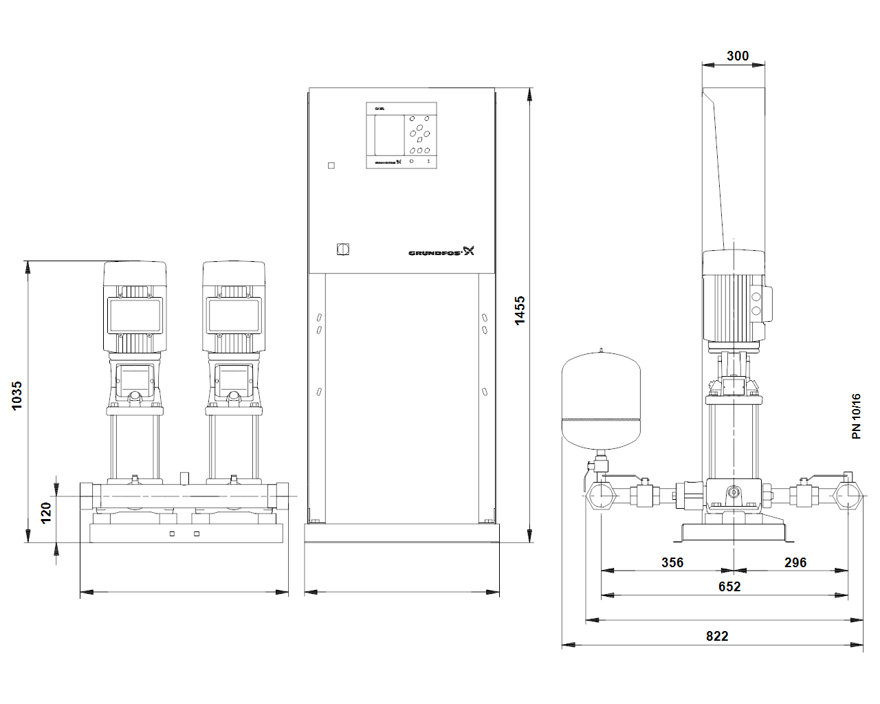
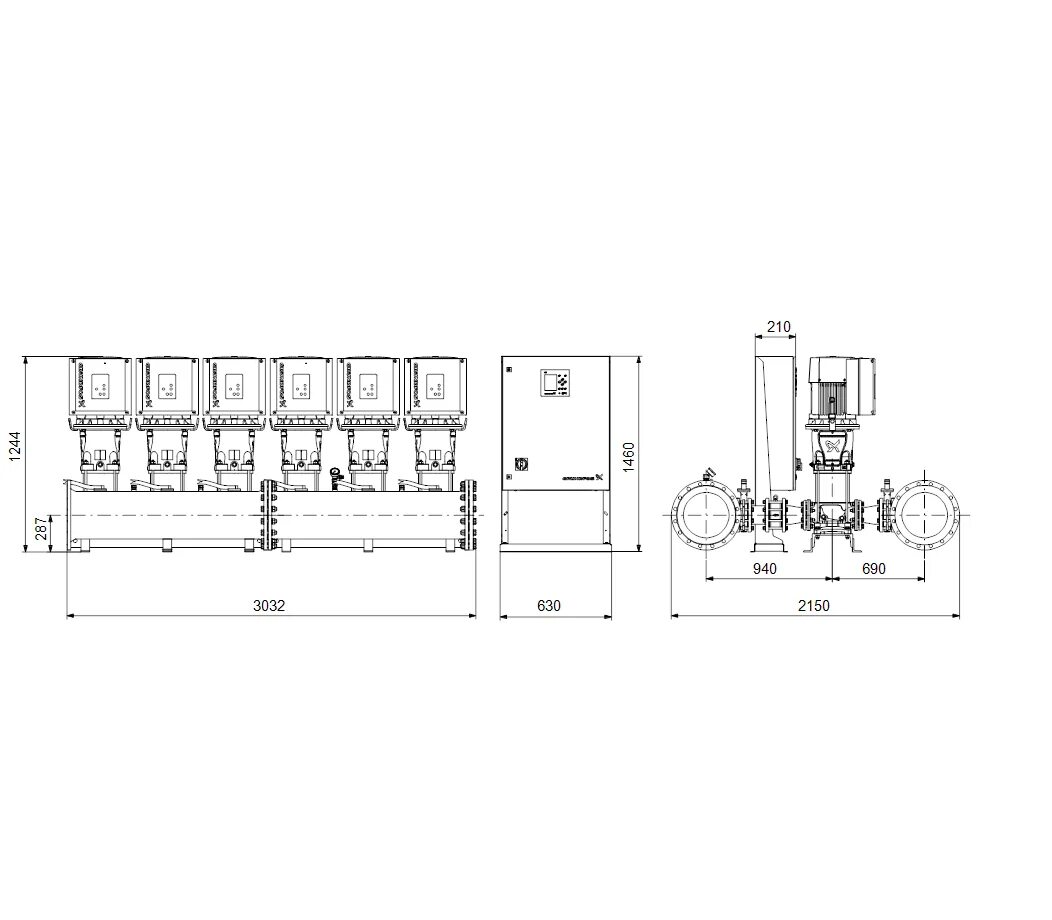
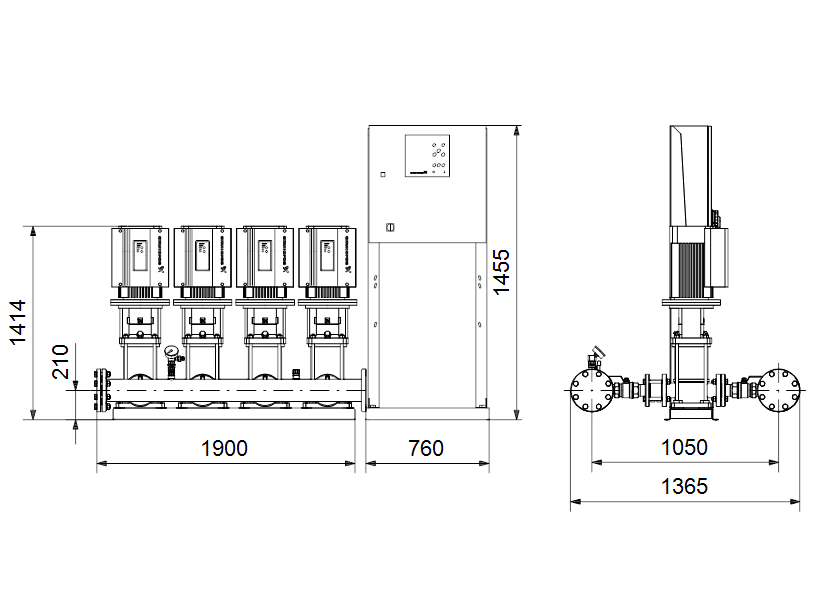
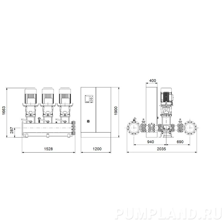
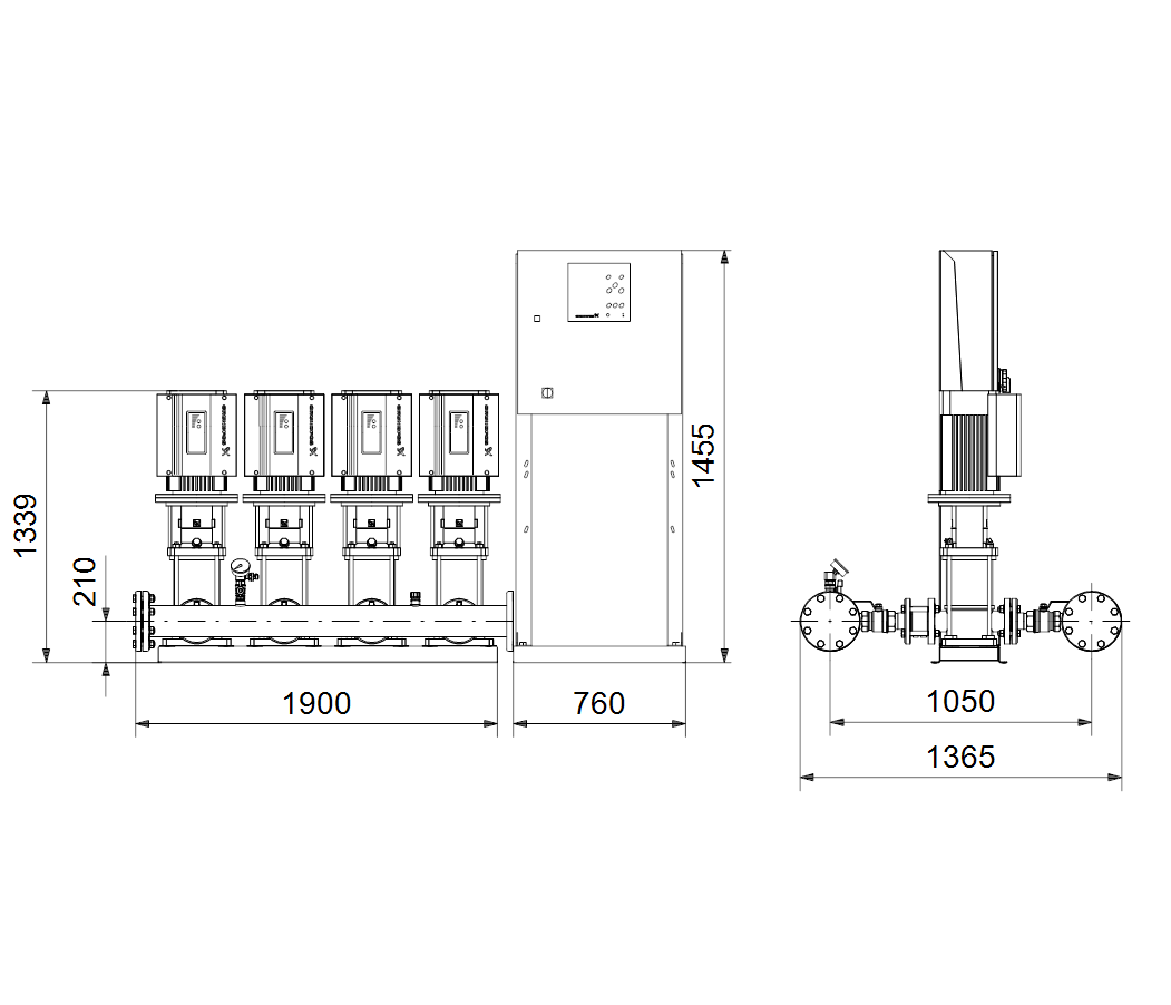
Hydro mpc e 3