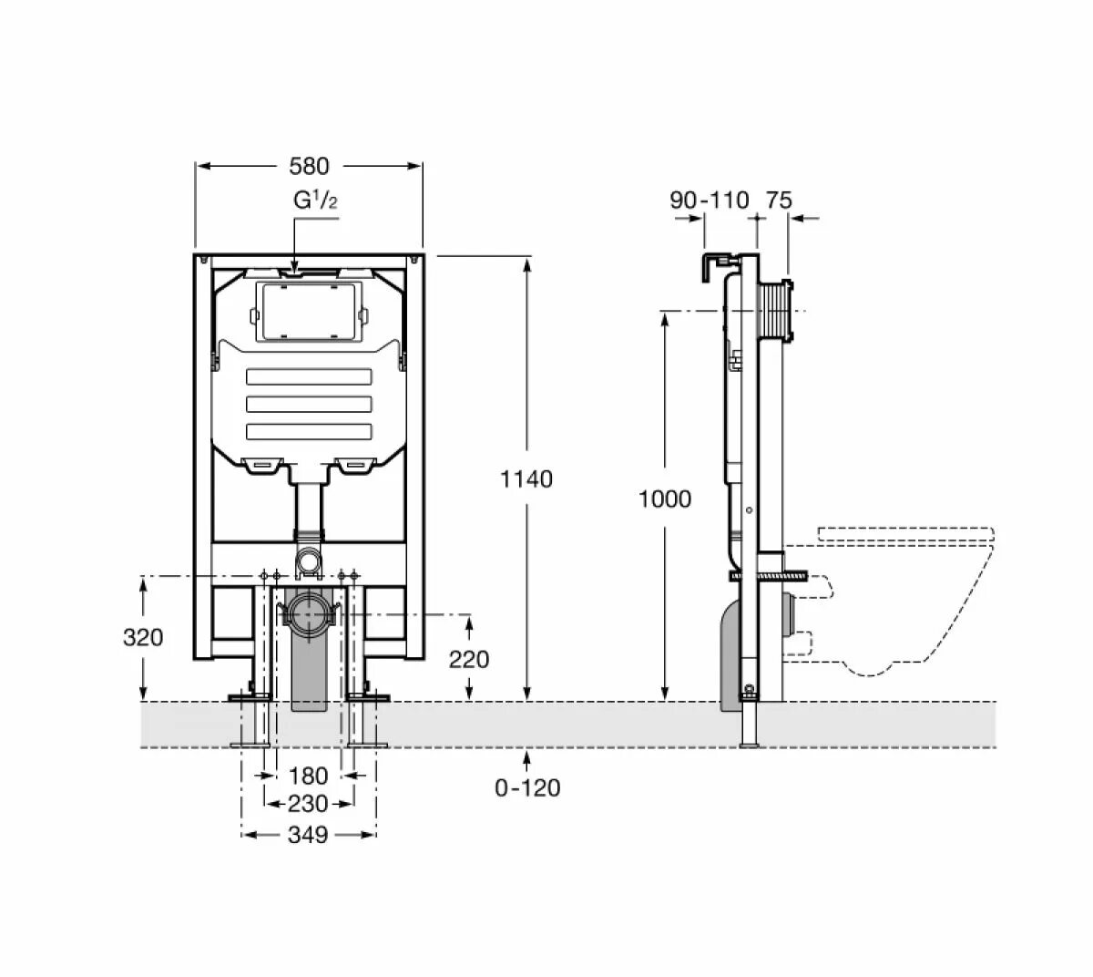
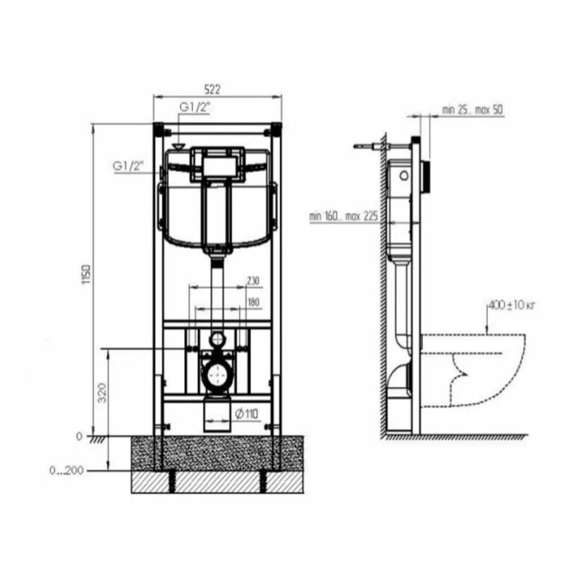
Инсталляция wc