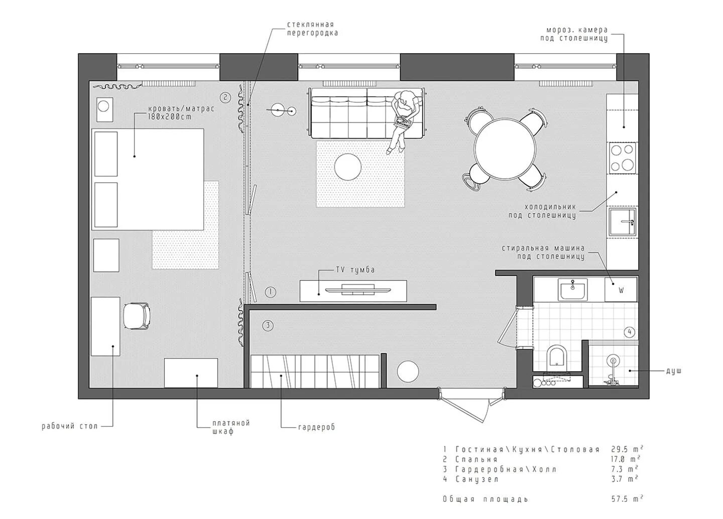
Инт проект