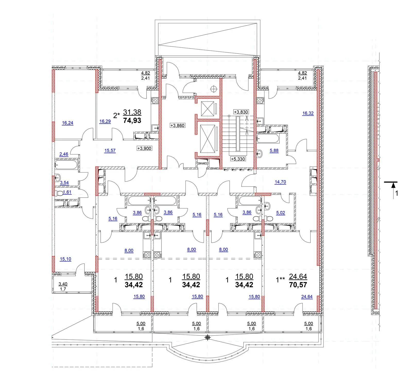
Интернационала 86