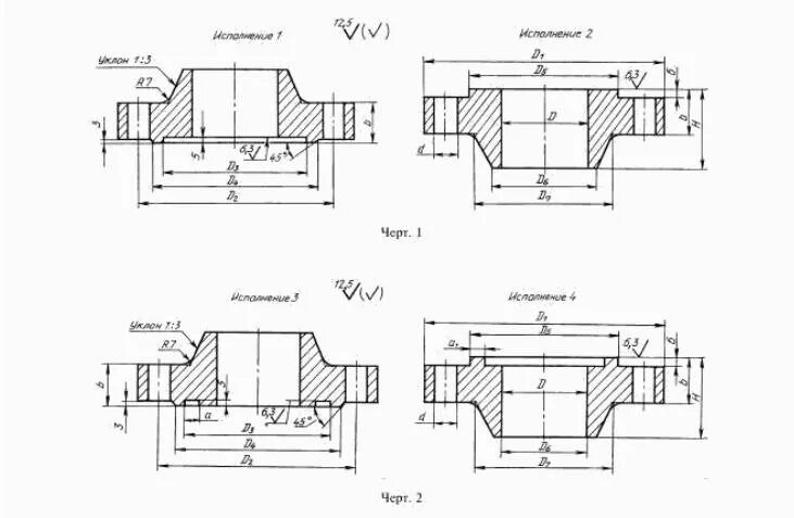
Исп фланцев