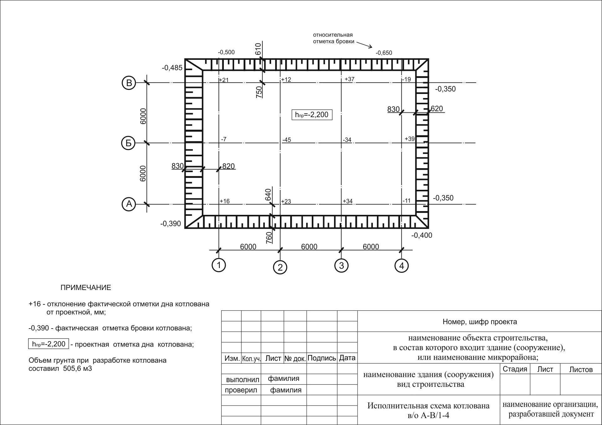
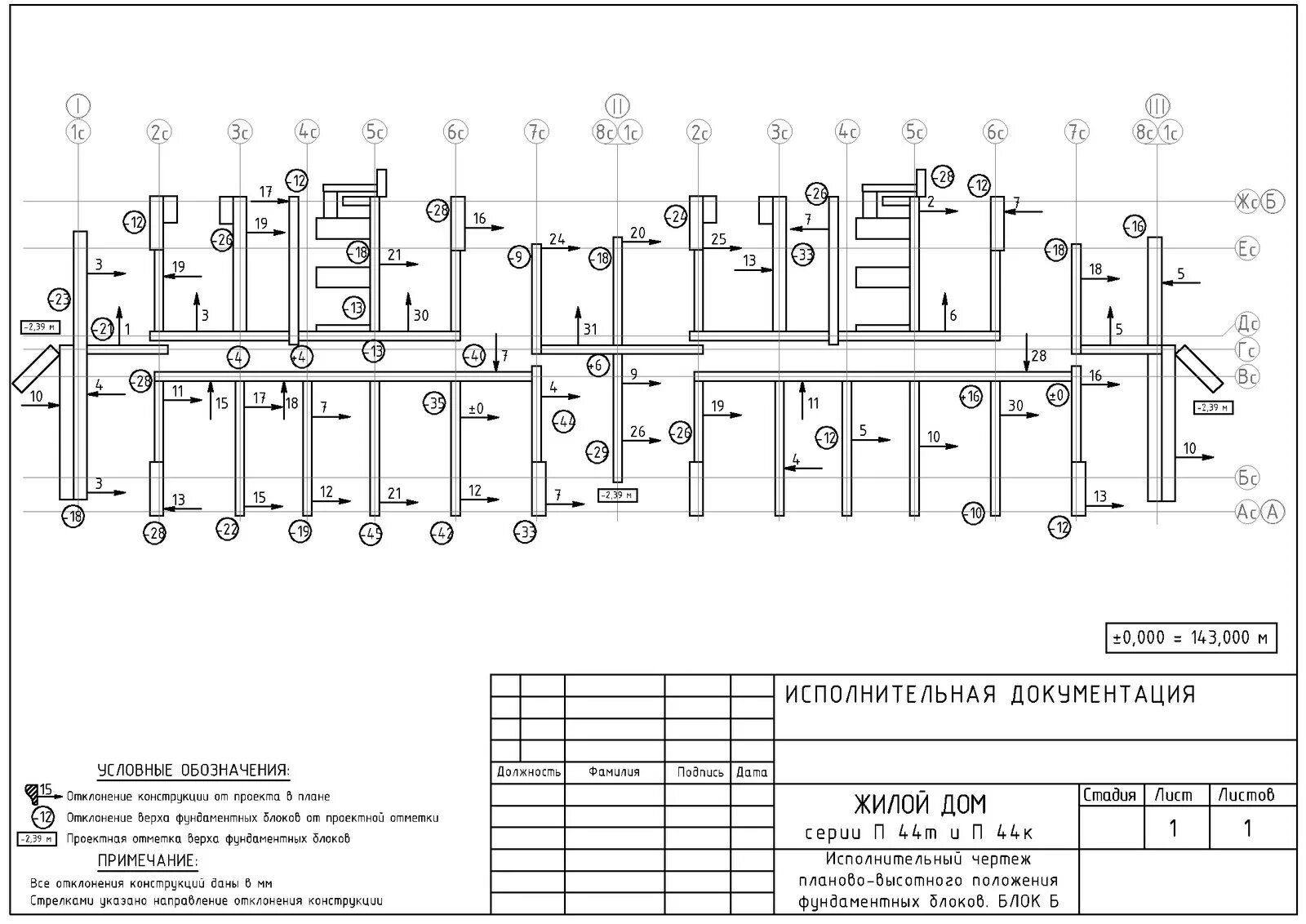
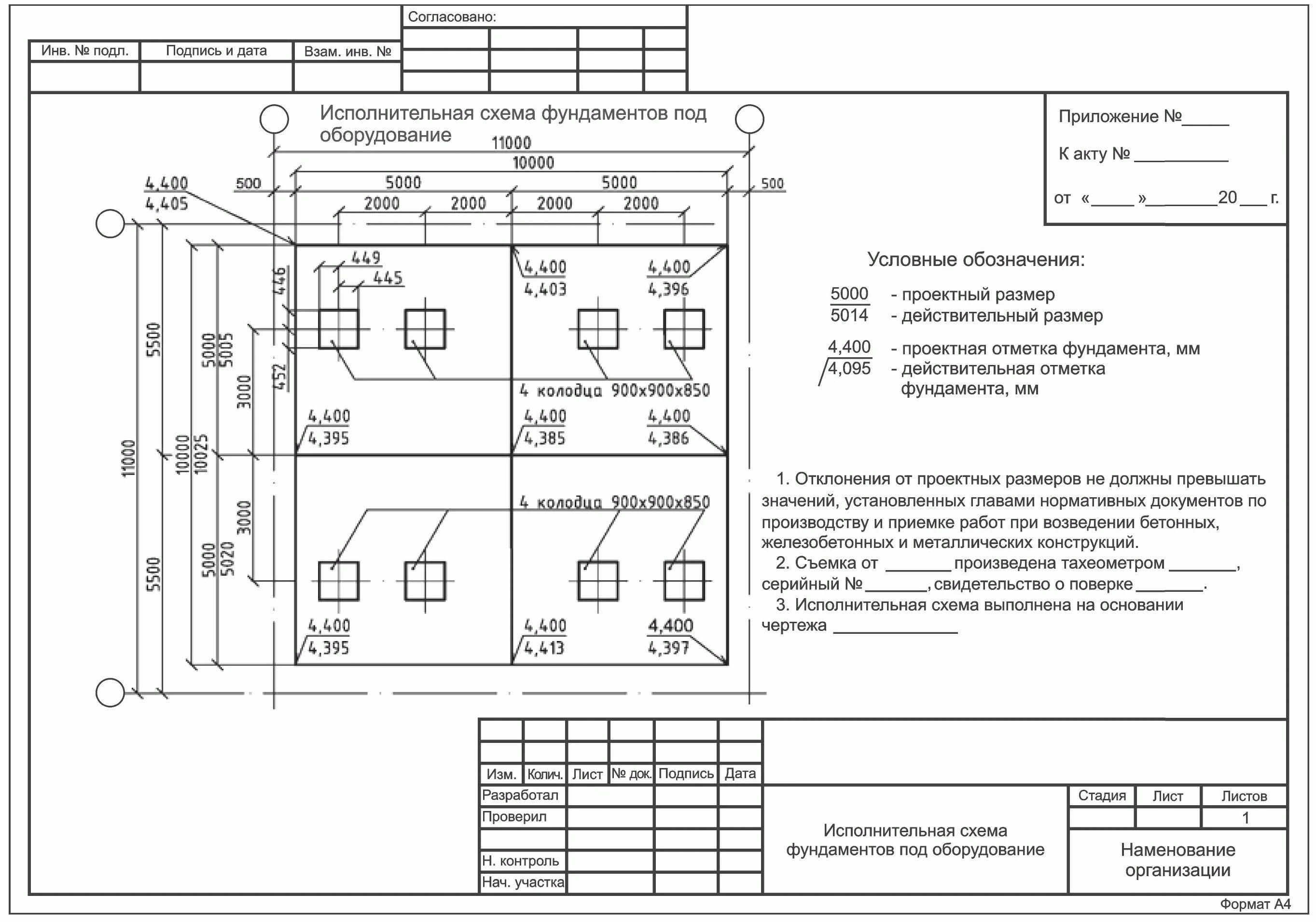
Исполнительная работа пример