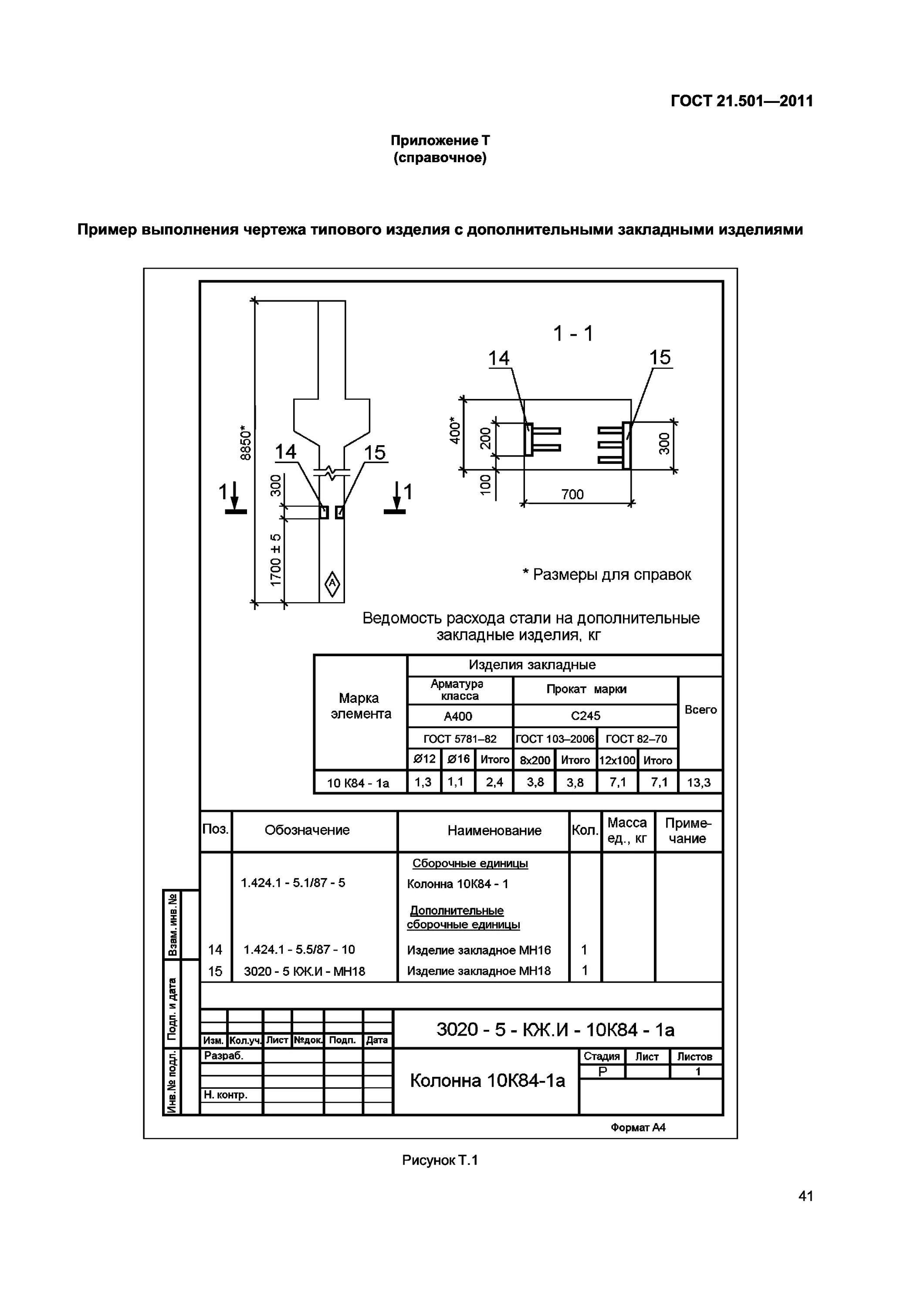
Изменение в чертеже пример