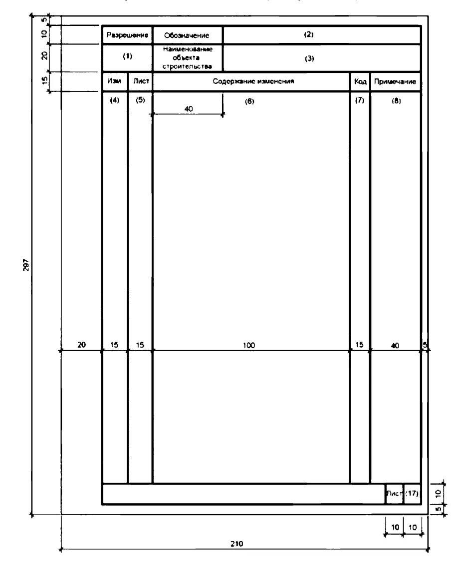
Изменения в форму проектной