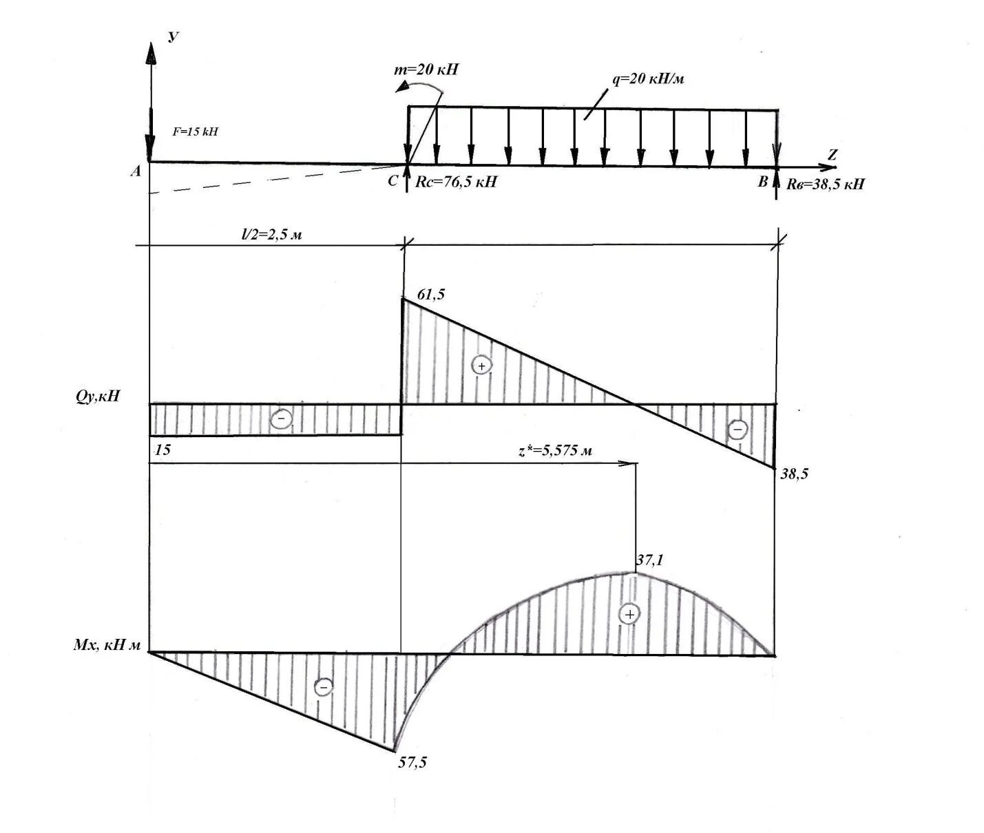
Как чертить эпюры