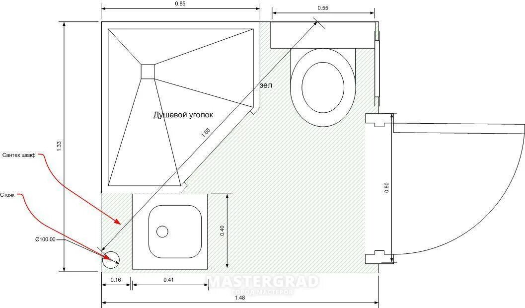
Как далеко можно устанавливать