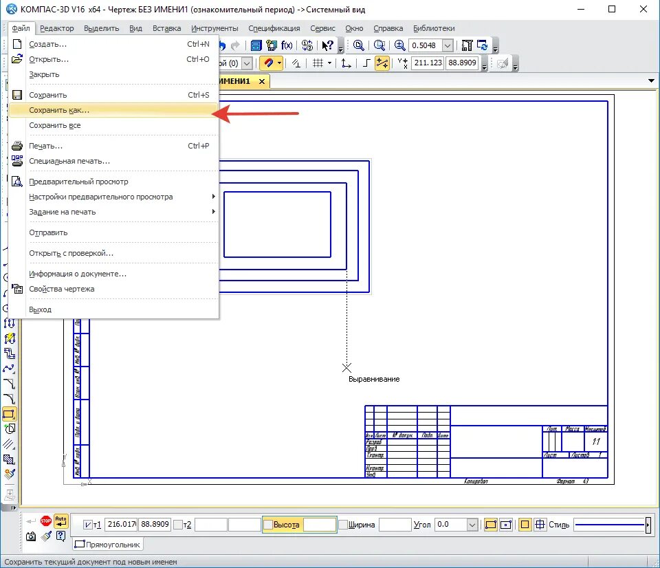
Как добавить вид в компасе