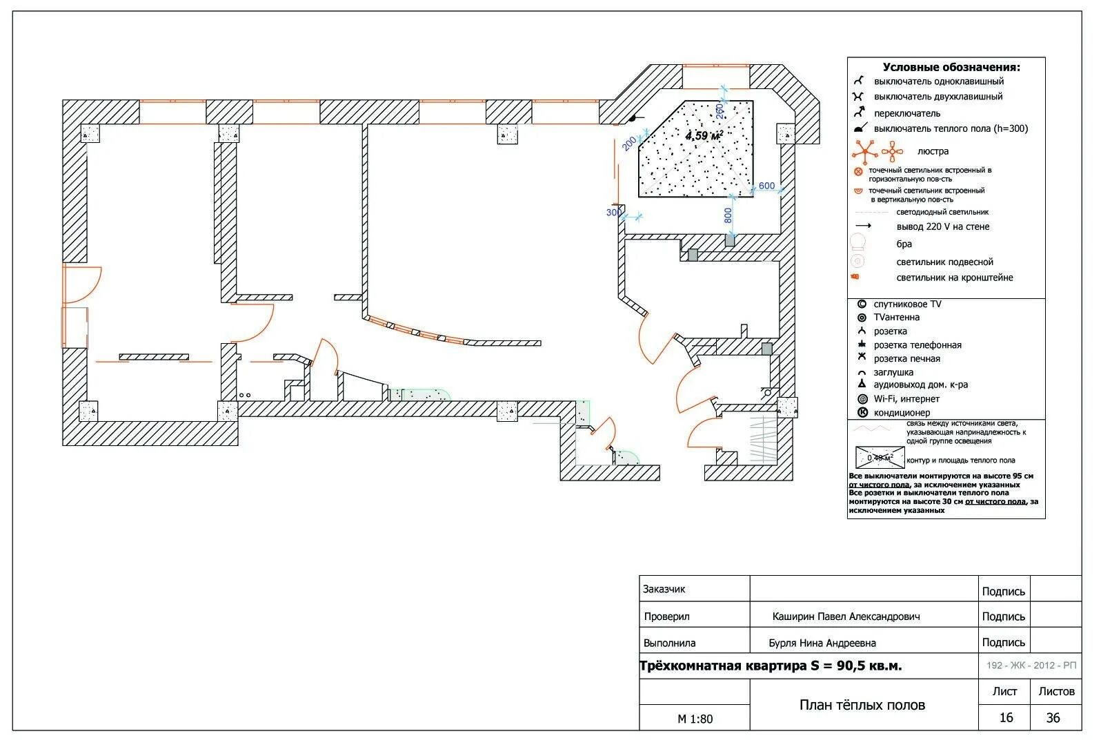
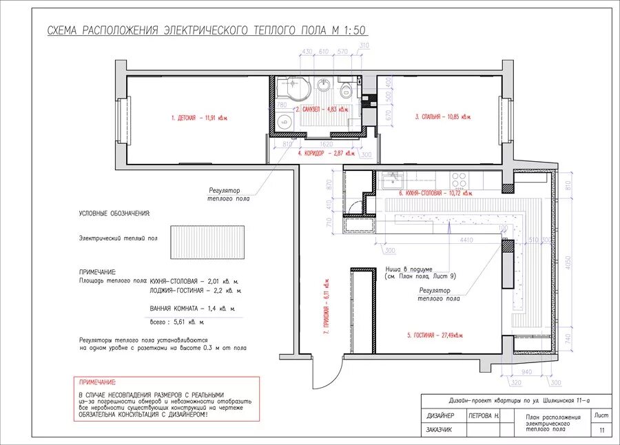
Как обозначается пол