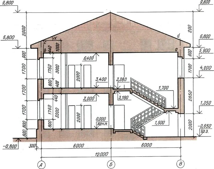
Как оформлять разрез