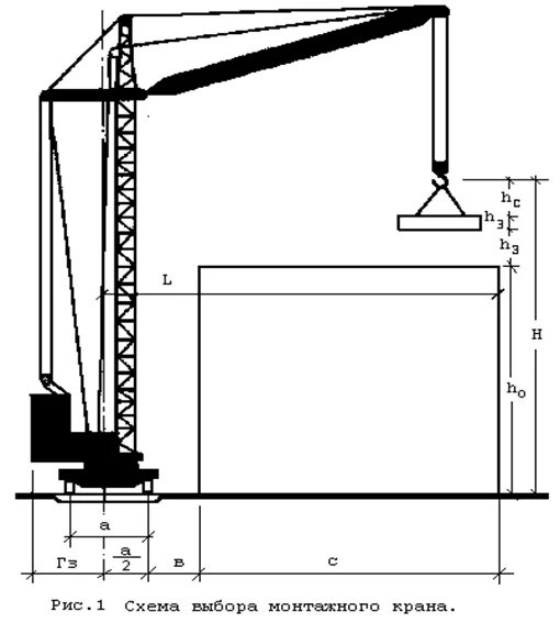
Как определить кран