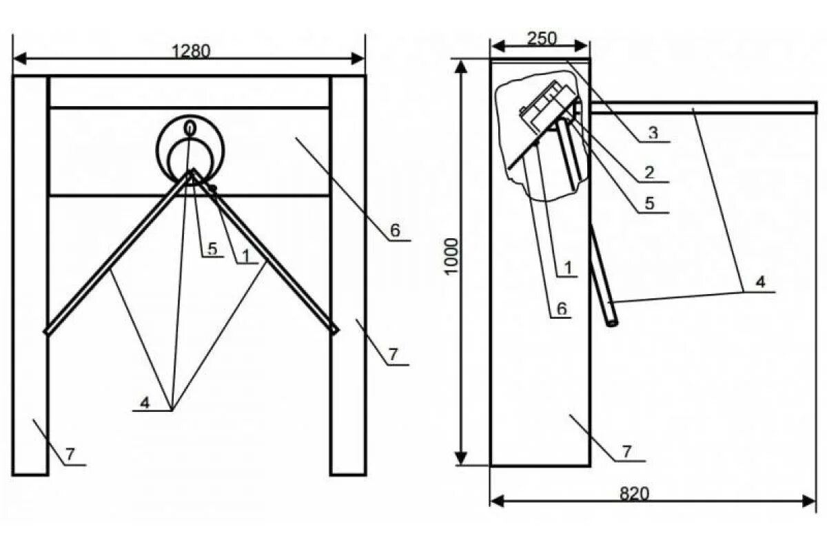
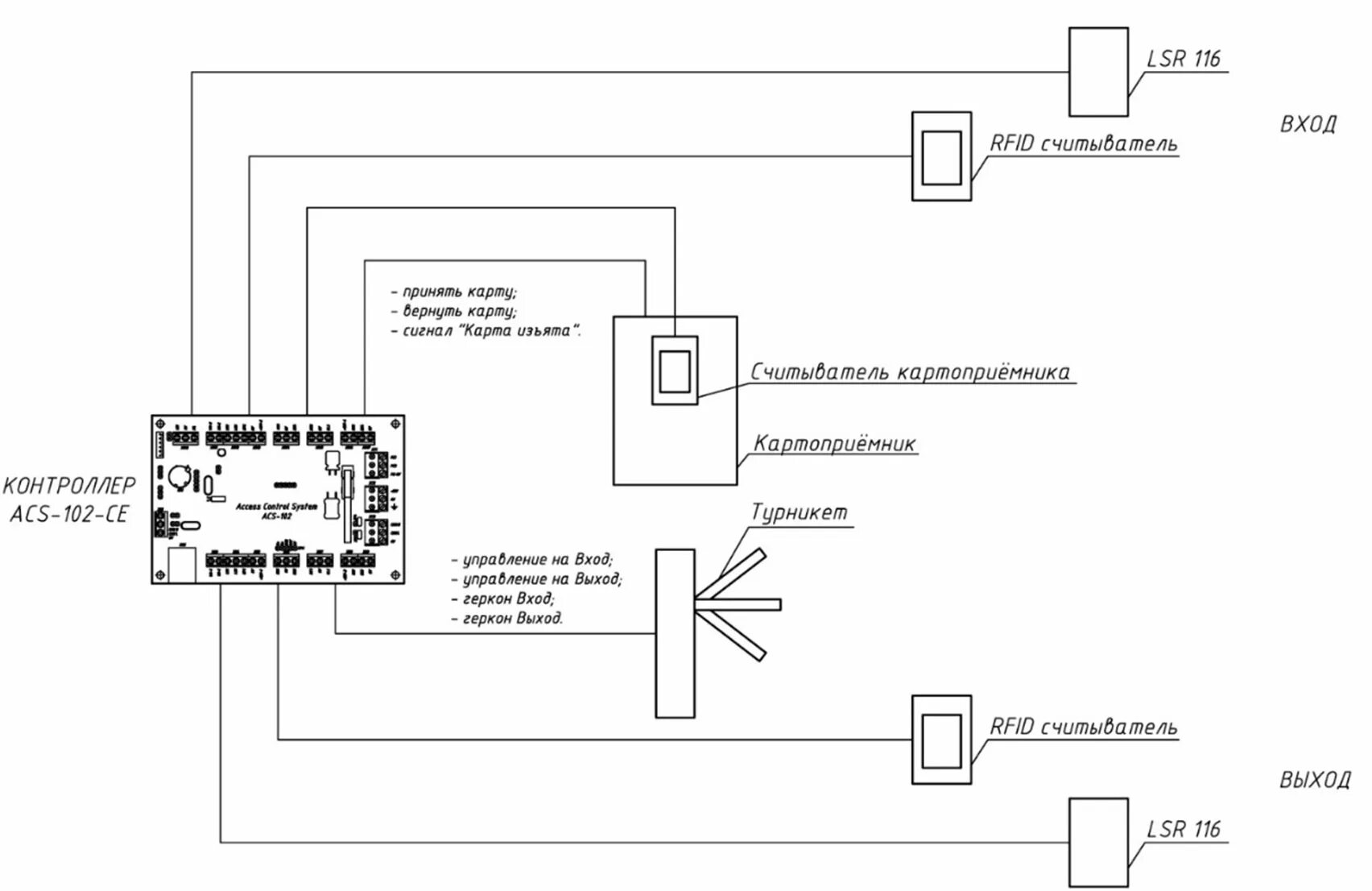
Как подключить турникету