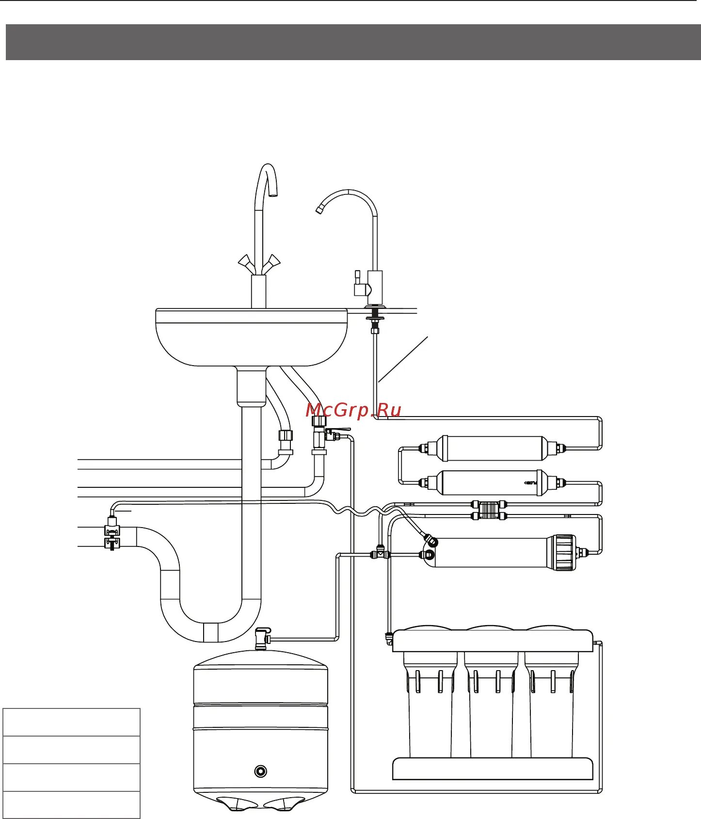
Как правильно подключить фильтр