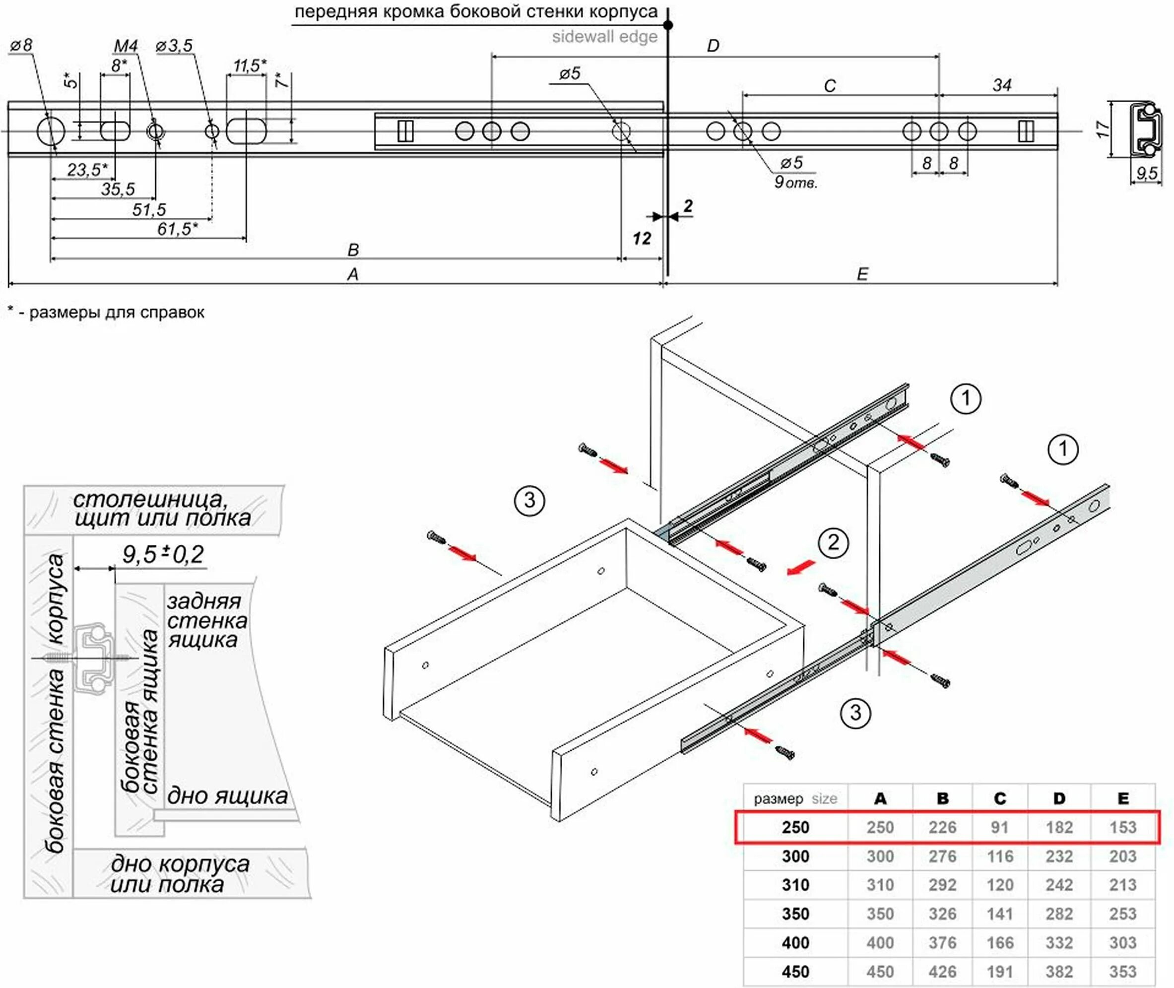
Как правильно установить шариковые направляющие