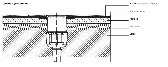
Как правильно установить трап в полу