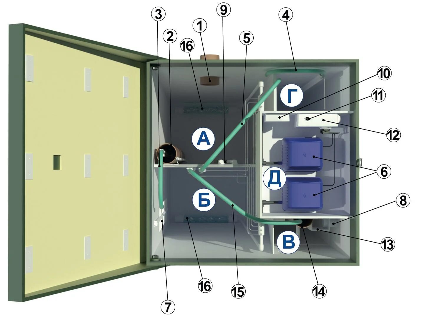
Как работает септик принцип работы