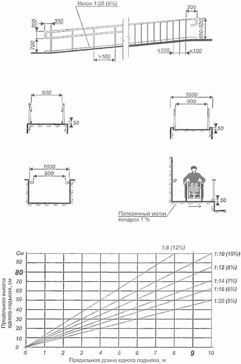
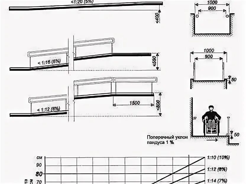
Как рассчитать длину пандуса