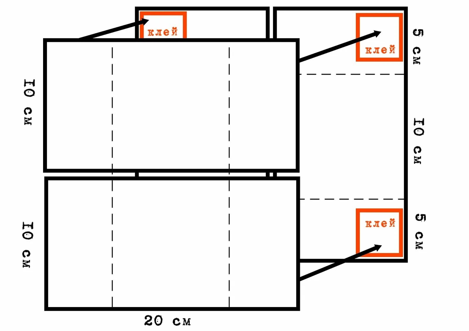
Как сделать бесконечную