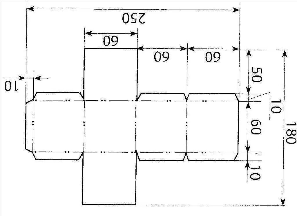
Как сделать кубик который