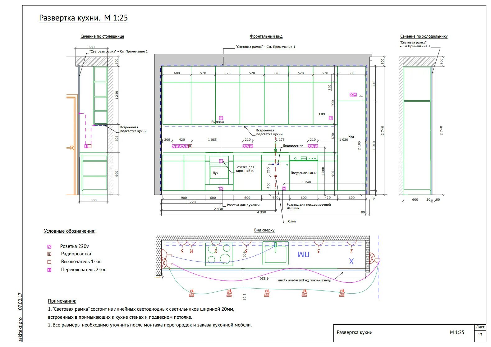
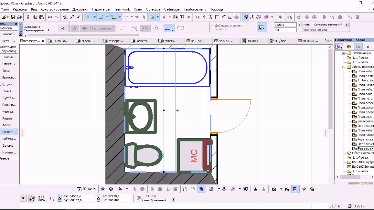
Как сделать развертку в архикаде