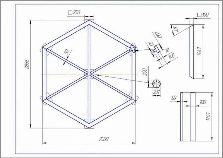
Как сделать шестигранную