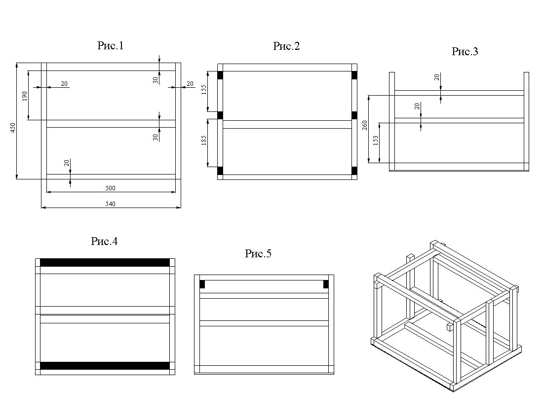
Как собрать кожух