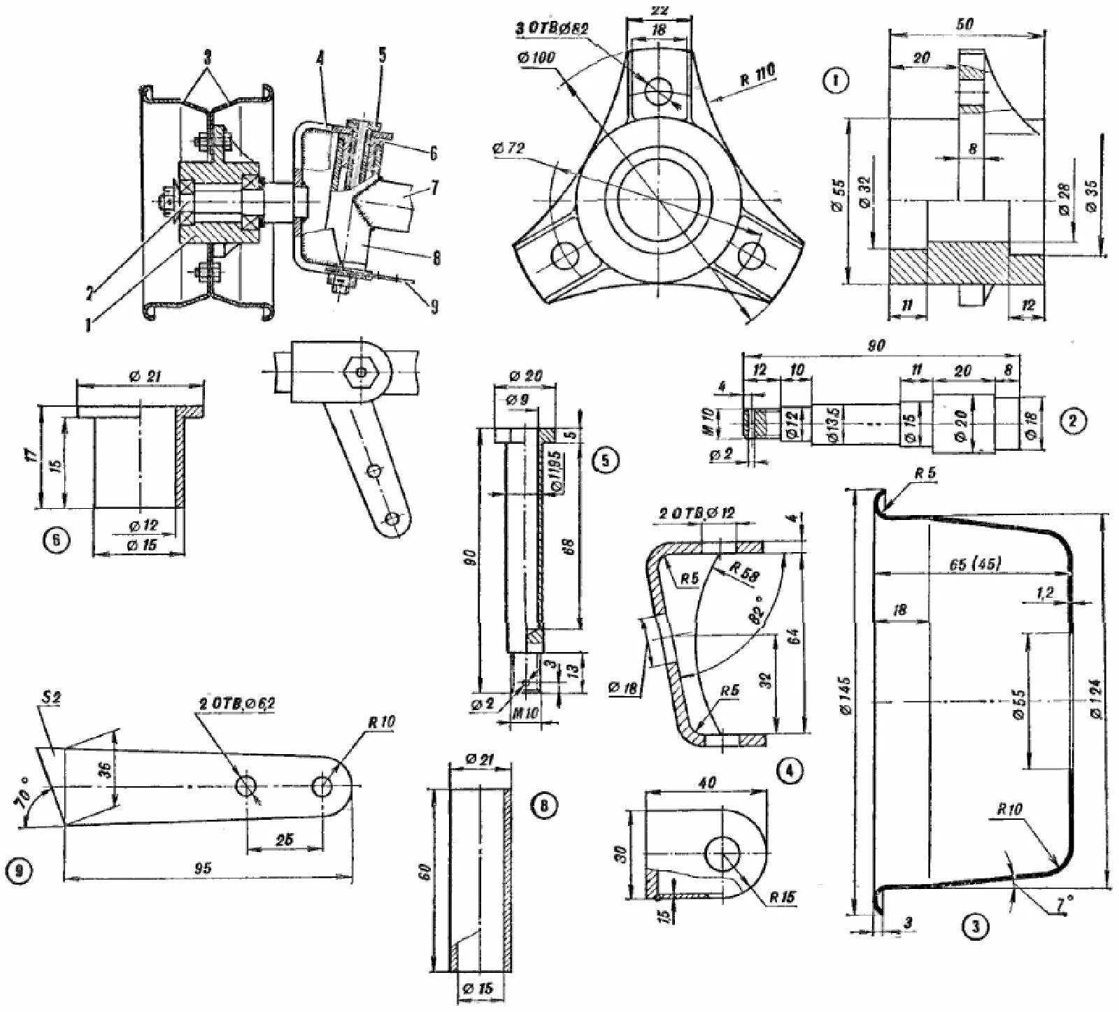
Как собрать поворотную